Торговые площади
Северная, 315 Показать на карте
Северная, 315 Показать на карте
Центральный, Центральный (ЦМР)
Краснодар
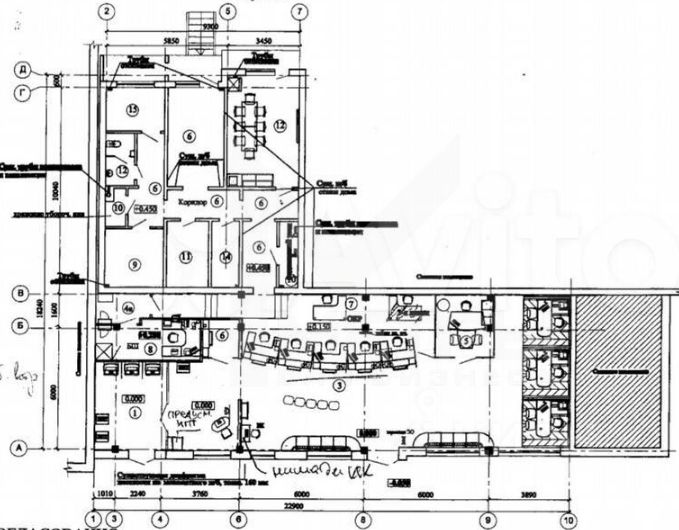
Сдаю торговое помещение общей площадью 150 м²От Собственника. Без комиссии- Первый этаж- Первая линия- Центральный округ- Центр города- Фасад на ул. Северная- Витражное остекление- Отдельная входная группа- Все коммуникации- Парковка - Удобная планировка- Зона разгрузки- Отлично подходит под торговлю, медицинский центр, стоматологию или детский центрОт Собственника. Без комиссииПо всем вопросам можете обращаться к вашему персональному менеджеру:Юлии Полиной- консультанту по коммерческой недвижимостиБольшая база коммерческой недвижимостиОт Собственника. Без комиссии''Агентство регионального развития''Коммерческая недвижимость КраснодараОт Собственника Без комиссииПодписывайтесь на наш профиль, чтобы узнавать о новых локациях первыми!Добавьте это объявление в ''избранное'' - чтобы не потерять.
150 м2
- Показать контакты
- Добавить в избранное
150 м2
225 000 /мес.
1 500 /м2
