Складское помещение
Новороссийская, 240 Показать на карте
Новороссийская, 240 Показать на карте
Карасунский, Камвольно-суконный комбинат (КСК)
Краснодар
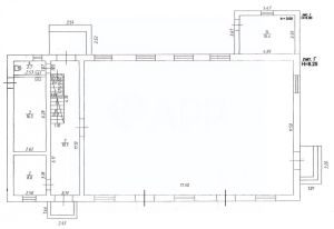
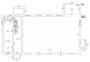
Сдаю склад 624 кв.м., в Оптово- розничном комплексе, с удобной транспортной развязкой, на выезд установлен светофор. - От Собственника. Без комиссии- Расположение: Карасунский округ, ОРК расположен между ул. Новороссийская и ул. Уральская, со сквозным проездом. - Преимущества: Парковка возле здания, заезд фуре в склад, есть место для маневра фурам. Подъезд асфальт.- Характеристика: Склад из сэндвич панелей, имеется встроенное офисное помещение 14 кв.м., со сплит. системой. Высота потолков 5.5 м. Эл. энергия 15 кВт, возможно увеличение. На территории интернет оптоволокно ЮГ телеком. Нагрузка на пол 5 тонн на 1 кв.м., обеспыленные. Сан/узел общий. Душевые арендуются отдельно. - Отлично подойдет под склад, хранение товаров, магазин-склад строительных материалов и подобное. Возможно переоборудовать под заказчика. Торг обсуждается.От Собственника. Без комиссии.По всем вопросам можете обращаться к вашему персональному менеджеру:Иван Самойленко - консультант по коммерческой недвижимости.Большая база коммерческой недвижимости.Подписывайтесь на наш профиль, чтобы узнавать о новых локациях первыми!Добавьте это объявление в ''избранное'' - чтобы не потерять.
624 м2
- Показать контакты
- Добавить в избранное
624 м2
405 600 /мес.
650 /м2
