1/13
Земельный участок, Краснодар
Западный
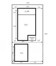
Продается уникальный эксклюзивный участок в центральной части города Краснодара по улице Береговой в районе Горогороды. Его уникальность заключается в площади 9.84 сотки и фасаде 37 метров. Таких участков в этом районе практически не бывает и они очень высоко ценятся. Земля полностью расчищена под строительство. Перед участком есть большая зона отчуждения более 5 метров до дороги, что позволяет посадить деревья или кустарники и придать фасаду красивый вид. Коммуникации:- центральное газоснабжение- центральное водоснабжение- электричество 20 кВт.- канализацию надо делать септик Отличное место для постройки дома своей мечты. На участке достаточно места для бассейна, бани, лужайки для отдыха, зоны барбекю и много другого. Также можно рассмотреть различные варианты для коммерческого использования. До Кубанской набережной всего 200 метров. Рядом находится река Кубань, парк 30-летия Победы, где Вы сможете насладиться прогулками в тени деревьев, а дети порезвиться на разнообразных аттракционах, дворец спорта Олимп, стадион Труд, тропа здоровья, фитнес центр Оранж фитнес, клиника Екатерининская, многочисленные магазины, кафе рестораны, салоны красоты и многое другое, необходимое для комфортной жизни. Всего 300 метров до остановок многочисленных маршрутов общественного транспорта, чуть дальше находятся школа 31 и детский сад 94. Всего 15 минут неторопливым прогулочным шагом и Вы попадаете на центральную улицу нашего города — Красную. Один взрослый собственник, без обременений. Участок подготовлен к продаже, есть градостроительный план. Спешите приобрести этот участок пока он в продаже!. Дополнительно оплачивается комиссия с покупателя.Код пользователя: 77192Номер в базе: 10923667
9,84 соток
80 000 000 ₽
