1-к, Тепличная, 62/1 корп. 6 Показать на карте
Прикубанский, Российская
Краснодар
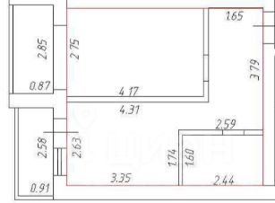
Уважаемые покупатели! Я собственник ,не агент!Убедительная просьба,ФИНАНСОВО не подготовленных людей, и с пред одобреной ипотекой-не беспокоить! Цените мое и ваше время!Вся информация о квартире ,написанная ниже-полностью честная и соответствует действительности!Преимущества моей квартиры:-Без обременений ,долгов и кредитов-Без перепланировок. Полноценная однокомнатная квартира-Без прописанных,долей и мат капитала-1 собственник по документам ,не риэлтор и без комиссий-Быстрый выход на сделку,документы все на рукахПродаю 1-к квартиру на 10/19 этаже S-33.7м2 с хорошим ремонтом,мебелью и техникой.Квартира полностью укомплектована и готова проживаниюИз окна комнаты открывается большой панорамный вид на город,а также видны: Красная площадь,Баскет холл и район Петра Метальникова.Район развит различной инфраструктурой, все, что необходимо в шаговой доступности!Возле дома большая парковка для автомобилей.Риэлторам не беспокоить ,продаю самостоятельно,в услугах ваших не нуждаюсь!Остальные вопросы по телефону и в сообщениях . Если не ответил, пишите , перезвоню !
33 м2
10 / 19 этаж
- Показать контакты
- Добавить в избранное
33 м2
10 / 19 этаж
4 650 000
137 982 /м2
