1-к, Заполярная, 45 Показать на карте
Прикубанский, Славянский (СМР)
Краснодар
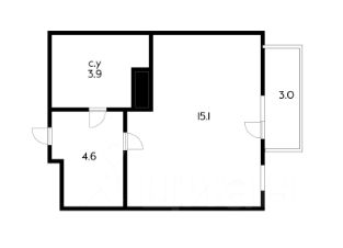
Продается уютная студия на высоком первом этаже, в доме СК ''Догма'' ЖК ''Студия 45'', с ремонтом и мебелью. Холодильник и стиральная машина в наличии. Дом 2020 года постройки находится по адресу: ул. Заполярная, д. 45, вблизи улицы Красных Партизан, Тургенева, Дзержинского - отличное место для комфортной жизни.Преимущества квартиры: общая площадь 21,1 кв. м без учёта лоджии. Расположена на первом этаже 17-этажного блочного дома. Жилая площадь составляет 15 кв. м, а кухня занимает 3 кв. м. Высокие потолки 2,7 метра создают ощущение простора, а окна, выходящие во двор, обеспечивают тишину и спокойствие. Есть широкая лоджия - место для отдыха или для хранения вещей.Квартира оформлена в современном стиле: выполнен качественный ремонт, который не требует дополнительных вложений. Встроенная мебель и современная техника остаются новому владельцу, что позволяет сразу заехать и начать жить. Совмещенный санузел выполнен с использованием современных материалов.Дом находится в отличном состоянии, здесь предусмотрены все удобства для комфортной жизни. Для жителей доступна наземная парковка, два пассажирских лифта и пандус для удобного передвижения. Жилой комплекс окружен зелеными насаждениями, что создает приятную атмосферу.В шаговой доступности расположены детские сады и магазины, что делает проживание здесь удобным и комфортным для семей с детьми. Хорошая транспортная доступность позволяет быстро добраться до центра города и других районов.Квартира полностью готова к продаже, документы оформлены, обременений нет. Возможна покупка в ипотеку. Юридическая чистота сделки гарантирована. Комиссия агентства включена в стоимость.Записывайтесь на просмотр, чтобы оценить все преимущества этой квартиры лично. Мы будем рады ответить на все ваши вопросы и помочь сделать правильный выбор.
21 м2
1 / 17 этаж
Бетонные блоки
- Показать контакты
- Добавить в избранное
21 м2
1 / 17 этаж
Бетонные блоки
3 098 000
146 825 /м2
