1-к, им Ковалева, 5 Показать на карте
Прикубанский, Фестивальный (ФМР)
Краснодар
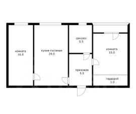
Продается 1-к квартира в самом сердце Фестивального в монолитно-кирпичном доме 2014г. с закрытой территорией — отличное место для комфортной жизни. Площадь 36,1 м2. Планировка: функциональная — идеальна для семьи или сдачи в арендуКухня-гостиная : просторная, 18 кв.м, отлично подходит для ужинов с близкими. Этаж 1/12, дом с высоким цоколем удобное расположение и вид из окна во двор, есть балкон застеклен. Хороший ремонт, не требует вложений, заезжай и живи. Остается почти вся мебель (кроме шкафа в спальне).Подъезд в прекрасном стиле, с 2 лифтами, консьержем, просторный холл и 2 входные группы, что создает атмосферу и ощущение статусности уже с первого шага.Закрытая охраняемая территория, наземная парковка закрыта воротами. Детская и спортивная площадки, зелёные зоны.В шаговой доступности: школы, сады, супермаркеты, поликлиника, аптеки, банки, кафе, рестораны..Отличная транспортная доступность: автобусы, маршрутки, до центра Краснодара улицы Красной шаговая доступность 25 минут, 10 минут на автомобиле.Быстрый выезд в центр и к ТЦ Красная Площадь, парк Галицкого, улица Красная.Дополнительные удобства:Разные группы освещения, что создает удобство, уют и комфорт,Надёжная входная дверь,Качественная мебель и сантехника.Документы в порядке, готовы к сделке, один собственник, без обременений, быстрое оформление сделки.Звоните, чтобы узнать подробности.Покажем квартиру лично или организуем онлайн-показ квартиры
36 м2
1 / 12 этаж
Кирпич - монолит
- Показать контакты
- Добавить в избранное
36 м2
1 / 12 этаж
Кирпич - монолит
7 200 000
199 446 /м2
