2-к, Воронежская, 47/39 Показать на карте
Центральный, Черемушки (ЧМР)
Краснодар
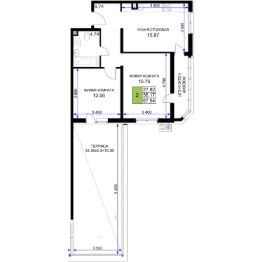
Двухкомнатная квартира в жилом комплексе ''Фонтаны'' спроектирована с учетом современных требований к комфорту и функциональности. Просторная кухня и две изолированные комнаты обеспечивают удобную и гибкую организацию пространства — вы можете использовать их как спальню и детскую, кабинет или гостевую. Особенность планировки — панорамное витражное остекление, которое наполняет интерьер естественным светом и визуально расширяет пространство. Уютную атмосферу дополняет светлая лоджия с витражным остеклением, которую можно обустроить как зону отдыха или полезное подсобное помещение. Продуманное расположение всех зон, высокие потолки и большие окна создают ощущение простора, света и уюта, делая эту квартиру в ''Фонтанах'' по-настоящему комфортным и современным домом.
76 м2
14 / 18 этаж
Кирпич
- Показать контакты
- Добавить в избранное
76 м2
14 / 18 этаж
Кирпич
20 138 625
263 250 /м2
Новостройка,
IV-2026
IV-2026
