1-к, Марьянская ст-ца Показать на карте
Марьянская ст-ца
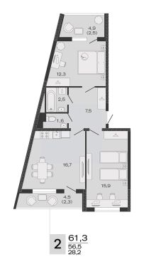
В продаже квартира в жилом комплексе ''Дзенпарк'' от застройщика ГК ''Лендекс''!''Дзенпарк'' — это современный жилой комплекс расположенный в станице Марьянской, всего в 30 минутах от центра Краснодара.Комплекс строится на 9 гектарах, и состоит из 10 четырех этажных домов Комфорт класса с бесшумными лифтами, окруженных уникальным ландшафтным дизайном с детскими и спортивными площадками, а так же местами для отдыха.Преимущества ''Дзенпарка'':• Экологически чистая территория с речкой рядом.• Отсутствие промышленных предприятий и ТЭЦ.• Квартиры с просторными террасами.• Система ''Умный дом'', видеонаблюдение и домофон, что позволит в онлайн режиме наблюдать за вашим ребенком на детской площадке.• Собственная школа на 1100 мест.• Физкультурно-оздоровительный комплекс.• Фермерский эко-маркет.• Близость к детским садам, поликлиникам, местам отдыха и спортивным площадкам.Также в ЖК ''Дзенпарк'' действуют выгодные предложения, разработанные совместно с банками партнерами!• Ставка 3,5% на весь срок ипотечного кредитования, платеж по которой составит от 8 376р. ,• Квартира в рассрочку без переплат! Рассрочка предоставляется на год с ПВ всего от 30%.• Квартира с ремонтом под ключ за 2,2млн,• И многие другие специальные программы!Познай дзен — приобрети квартиру в ЖК ''Дзенпарк''!
20 м2
4 / 4 этаж
Кирпич - монолит
- Показать контакты
- Добавить в избранное
20 м2
4 / 4 этаж
Кирпич - монолит
2 412 000
120 000 /м2
Новостройка,
III-2026
III-2026
