2-к, Темрюк Показать на карте
Темрюк
Описание комплекса ''Сады у моря''Месторасположение: г. Темрюк, ул. Дальняя, 30Комплекс состоит их трех 8-этажных домов, каждый дом имеет подземный технический этаж. Литеры 1 и 2 состоят из 10 подъездов.Литер 1 и 2 построены и введены в эксплуатациюЛитер 3 9-ти подъездныйПланируемый срок получения Застройщиком разрешения на ввод в эксплуатацию многоквартирного дома 01.12.2026 года.Срок передачи застройщиком объекта долевого строительства участникам долевого строительства не позднее 31.12.2026 года.Дома состоят из прямых и поворотных секций. Дом имеет полузамкнутый двор, в форме ''карэ''.Территория жилого комплекса имеет дворы со спортивными и детскими площадками.Благоустройство территории выполнено на высоком уровне, в домах предусмотрены просторные входные группы. С 5 по 10 подъезд на первых этажах предусмотрена коммерческая недвижимость, таким образом, вся необходимая инфраструктура находится в шаговой доступности. В ЖК уже располагаются супермаркет ''Пятерочка'', пункт выдачи интернет-заказов.Въезд во двор возможен со стороны улицы Карла Маркса. Для отделки фасада использован керамический и силикатный кирпич двух цветов: графит и белый. Благоустройство территории выполнено на высоком уровне, в домах предусмотрены просторные входные группы. С 5 по 10 подъезд на первых этажах предусмотрена коммерческая недвижимость, таким образом, вся необходимая инфраструктура будет находиться в шаговой доступности.Преимущества:Дома подключены к городской системе отопления, водоснабжения и канализации.Отопление в квартирах будет выполнено с установленными датчиками тепла оплата только за потребленную тепловую энергию.В каждую квартиру подведен оптоволоконный кабель для интернета.На фасаде дома предусмотрены места для установки наружных блоков кондиционирования. Внешний вид дома сохранится на долгие годы эксплуатации здания.В отделке фасада использованы высококачественные облицовочные материалы.В квартирах выполнена качественная предчистовая отделка: стяжка пола, установлены приборы учета, произведена разводка электрики, подведены кабели для ТВ, интернета и домофона.В каждом подъезде предусмотрен грузопассажирский лифт, рассчитанный на 8 человек.Все способы покупки: ипотеки и рассрочки от застройщика под 0% до окончания строительства.Напротив 1 литера к 2027 г. будет построен современный детский сад на 300 мест, который застройщик передаст в собственность муниципалитету.Качественные и разнообразные по наполнению игровые площадки, спортивные зоны.Инфраструктура:Темрюк постоянно развивается. Строятся детские сады, школы, спортивные площадки, медучреждения. На территории района расположены крупные предприятия пищевой и перерабатывающей промышленности, три порта международного сообщения один из которых расположен непосредственно в Темрюке.Технические характеристики:Строительство домов ведется по монолитно-кирпичной технологии.1 и 2 литер на 1 этаже запроектированы коммерческие помещения.В подъездах 6 и 7 запроектировано помещение насосно
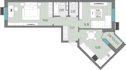
61 м2
6 / 8 этаж
Кирпич - монолит
- Показать контакты
- Добавить в избранное
61 м2
6 / 8 этаж
Кирпич - монолит
9 608 450
155 000 /м2
Новостройка,
IV-2026
IV-2026
