2-к квартира Показать на карте
Карасунский, Хлопчато-бумажный комбинат (ХБК)
Краснодар
Флагманский проект группы компаний Точно - жилой комплекс бизнес-класса Патрики, это 10 домов разной этажности расположившихся на 28,5 гектарах. Жилой комплекс с концепцией город в город - прогулочные аллеи, парковая территория, 3 детских сада, 2 школы - одна из которых частная, Гранд аллея с ресторанами, фонтанами и модными бутиками, уникальные мафы и ландшафтный дизайн, создают особую атмосферу - место в котором хочется находиться. В Патриках предусмотрен и креативный кластер Цех, который включает в себя пространство для коворкинга, фудкорт, бутики, детский комплекс, лектории, фитнес-клуб Баланс с волной для сёрфа. Но и это еще не все ГК Точно уважает историю, поэтому мы сохранили 2 башни - наследство от завода ''Сельмаш'' исторический арт-объект назвали Мастер и Маргарита.
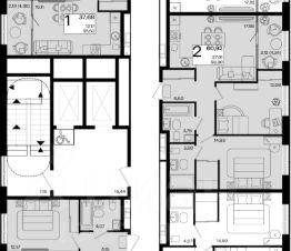
61 м2
2 / 18 этаж
Кирпич - монолит
- Показать контакты
- Добавить в избранное
61 м2
2 / 18 этаж
Кирпич - монолит
16 573 032
271 600 /м2
Новостройка,
I-2027
I-2027
