1-к, Небуг Показать на карте
Небуг
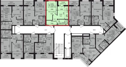
Продаётся 1-комнатная квартира в строящемся доме (Литер 3), срок сдачи: III-кв. 2027, общей площадью 34.91 кв.м., на 8 этаже. Новый жилой комплекс ''Botanica Hills'' от застройщика ''Название застройщика'' расположен по адресу Краснодарский край, Туапсинский район, село Небуг, Спортивная улица.
34 м2
8 / 18 этаж
Кирпич - монолит
- Показать контакты
- Добавить в избранное
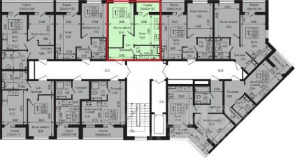
34 м2
8 / 18 этаж
Кирпич - монолит
9 685 080
277 430 /м2
Новостройка,
III-2027
III-2027
