1-к, Небуг Показать на карте
Небуг
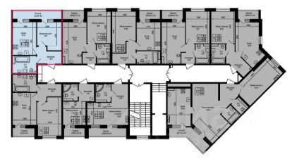
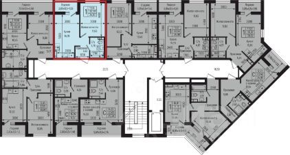
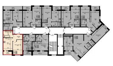
Продаётся студия в строящемся доме (Литер 3), срок сдачи: III-кв. 2027, общей площадью 21.32 кв.м., на 12 этаже. Новый жилой комплекс ''Botanica Hills'' от застройщика ''Название застройщика'' расположен по адресу Краснодарский край, Туапсинский район, село Небуг, Спортивная улица.
21 м2
12 / 18 этаж
Кирпич - монолит
- Показать контакты
- Добавить в избранное
21 м2
12 / 18 этаж
Кирпич - монолит
7 483 530
351 010 /м2
Новостройка,
III-2027
III-2027
