2-к, им генерала Корнилова, 24 Показать на карте
Прикубанский, Западный обход
Краснодар
Жилой комплекс представляет собой 3 корпуса высотой в 9 этажей. Дома возведены по кирпично-монолитной технологии строительства с фасадами, облицованным кирпичом. Во входных группах выполнена дизайнерская отделка и установлены современные лифты. На 1 этажах расположены коммерческие помещения.В проекте представлены планировки от 1 до 3-комнатных квартир. Сдаются они с отделкой White Вох, высотой потолков 2.68 метров и стандартными окнами. На лоджиях и балконах выполнено панорамное остекление.Территория комплекса благоустроена: выполнено ландшафтное озеленение, спроектированы детские и спортивные площадки, места для отдыха. Для владельцев автомобилей предусмотрен подземный паркинг.Проект расположен в районе с развитойинфраструктурой: в пешей доступностирасположены детские сады, школы, фитнес-клубы, супермаркеты, мед. центры, аптеки. До центра г.Краснодар можно добраться за 20 минут на автомобиле.
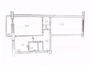
55 м2
5 / 9 этаж
Кирпич - монолит
- Показать контакты
- Добавить в избранное
55 м2
5 / 9 этаж
Кирпич - монолит
7 019 740
127 400 /м2
Новостройка
