Коттедж, Звенящая, 38 Показать на карте
Прикубанский
Краснодар
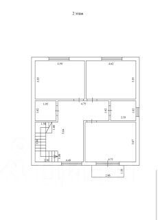
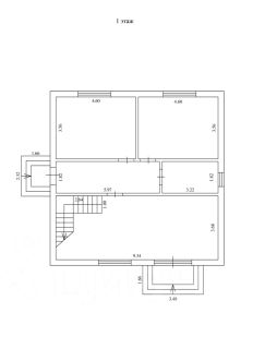
Реальное предложение, без дополнительных оплат комиссий и условий. Вся информация и фотографии актуальные.Продам дом в элитном поселке Вишневый сад. Поселок расположен всего в нескольких минутах езды от стадиона футбольного клуба Краснодар и лучшего парка страны - парка Галицкого, самого узнаваемого места краевого центра. До исторического центра Краснодара отсюда всего 15-20 минут езды на автомобиле. В город можно добраться и на общественном транспорте — прямо у въезда в поселок находится автобусная остановка. Рядом с проходной новая школа, детский сад, магазины, аптеки, рядом краевая клиническая больница.Поселок имеет закрытую территорию, при въезде и по всему периметру установлены системы видеонаблюдения, круглосуточно работает охрана. Собственная управляющая компания следит за уборкой и благоустройством территории.Дома в поселке подключены к центральным коммуникациям и снабжены газом, светом, канализацией и водой, а также высокоскоростным интернетом, в поселке проложена также ливневая канализация. Все коммуникации спрятаны под землю, чтобы обеспечить эстетичный вид улиц.Дом 1-этажный!! (очень редкое предложение). Очень удобная и функциональная планировка, три спальни (19,3, 14,9 и 12,6 кв.м, уютная кухня-гостиная 40,2 кв.м, два санузла. Отделку делали для себя и с любовью)), для комфортного, длительного проживания. Большая часть мебели остается в подарок новым владельцам. На участке разбит чудесный сад с плодовыми деревьями и цветами.Документы на дом и земельный участок готовы к продаже. Просмотры дома возможны только по предварительному согласованию.Один взрослый собственник, покупался за наличные денежные средства, без мат. капитала и ипотеки. Вся сумма в договоре!Звоните, с удовольствием покажем!
115 м2
1 этаж
Бетонные блоки
- Показать контакты
- Добавить в избранное
115 м2
1 этаж
Бетонные блоки
23 500 000
203 463 /м2
