Дом, Базарная Показать на карте
Карасунский, Новознаменский
Краснодар
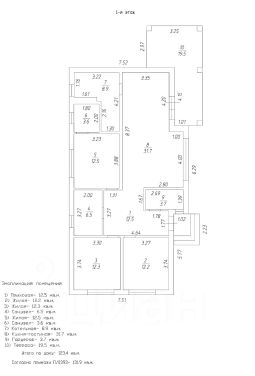
Срочная продажа! Без комиссий! Помощь в открытии ипотеки.Расположен объект в поселке Знаменском ул.Базарная .Дом построен в 2024 году.Категория земель ИЖС. Квадратура дома 140 кв, на участке 4,5 сотки.В доме три комнаты и просторная кухня гостиная.Второй этаж в свободной планировке, можно сделать 2 полноценные комнаты. В зонах общественного пользования сделан теплый пол (коридор, санузел и кухня-гостиная).Дополнительные фото отправим по запросу.Участок правильной формы, сделана отмостка по периметру дома, есть место под заезд двух машин. Забор сделан из профнастила, откатные ворота. Большая придомовая территория.Забетанировано место под заезд двух машин.ПРЕДЧИСТОВАЯ ОТДЕЛКА БУДЕТ ВЫПОЛНЕНА В ТЕЧЕНИИ 1-2 НЕДЕЛЬ.Инфраструктура района развита. Остановки общественного транспорта в 5 минутах ходьбы. Рядом есть магазины, сетевые и частные. Муниципальные учреждения: две школы на территории поселка и детский сад, все в 5 и 10 минутах от дома, так же на территории. В пешей доступности есть вся необходимая инфраструктура: детские спортивные центры, ярмарки, поликлиники, отделение почты и многое другое.По всему поселку разбиты цветники, организованы газоны, дорожки выложены плиткой. Неподалеку находятся два крупных торгово-развлекательных центра Мегамолл и Oz Mall, в пяти минутах езды расположен ТЦ Лента.Звоните или пишите ответим на все Ваши вопросы!С агентами не сотрудничаем, просьба не беспокоить.Показ осуществляется по предварительной договоренности.
140 м2
2 этажа
- Показать контакты
- Добавить в избранное
140 м2
2 этажа
6 900 000
49 286 /м2
