Дом, Горького Показать на карте
Каневская ст-ца
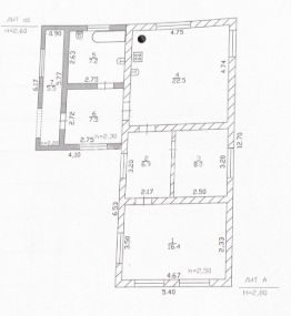
Арт. 108898610 НЕ УПУСТИТЕ ВЫХОДНОЕ ПРЕДЛОЖЕНИЕ Жилой дом можно приобрести по программе ''Льготной Ипотеки '' Без ПВ Ипотека под строительство - 6% Материнский капитал как первоначальный взнос .ЗВОНИТЕ МНЕ,ПРЕДОСТАВЛЮ ВАМ ПОЛНЫЙ КАТАЛОГ НАШИХ ПРОЕКТОВ . ,вы получите одноэтажный дом на 100 м2 с 3 изолированными спальнями, гостиной объединённой с кухней, 2 санузла. Бонусом идёт крытая терраса на 10 м2 в выходом во двор .В предчистовой отделке заказчик получает:1. Качественную предчистовую отделку (на полу механизированная стяжка, стены (шпатлёвка, штукатурка),2. Крытую террасу на 10кв.м. с выходом во двор,3. Установку радиаторов над каждым окном,4. Тёплые полы во всех комнатах, кроме спален,5. По дому разводка инженерных коммуникаций (электричество , канализация, вода и отопление),6. Установку электрического или газового котла,7. Септик. Звоните! Записывайтесь на показ объекта прямо сейчас. Рады будем ответить на все ваши вопросы.
100 м2
1 этаж
Кирпич
- Показать контакты
- Добавить в избранное
100 м2
1 этаж
Кирпич
3 600 000
36 000 /м2
