Дом, Динская ст-ца Показать на карте
Динская ст-ца
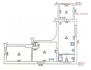
Продам новый ДОМ общей площадью 100м2 на большом земельном участке 6 соток ИЖС.Планировочное решение : Три спальные ,изолированные комнаты ,большая кухня- гостиная с выходом на задний двор ,ванна комната , котельная ,холл.Коммуникации :Электричество 15 кВт,вода ,канализация ,Газ проходит по меже участка.Продается в предчистовой отделке: разводка электричества, стены оштукатуренные, механизированная стяжка пола, мультифункциональный стеклопакет в остеклении , в комнатах установлены радиаторы,современный котел отопления .Дом расположен на просторном участке правильной формы 6 соток ,с возможностью установить мангальную зону, поставить бассейн, выделить зону для отдыха с небольшой беседкой.В станице есть ''Парк культуры и отдыха'', который расположен на берегу реки и предлагает различные развлечения: пляж, прокат катамаранов , детские и спортивные площадки, рыбалка.Так же , расположена вся необходимая инфраструктура для комфортной жизни: общеобразовательная школа ,детские сады , техникумы, больница, сетевые магазины (магнит, пятерочка), стоматологии, салоны красоты, МФЦ, отделения банков.Дом готов к продаже.Семейная , Сельская,IT-ипотека.
100 м2
1 этаж
Кирпич
- Показать контакты
- Добавить в избранное
100 м2
1 этаж
Кирпич
10 000 000
100 000 /м2
