Дом, Абрикосовая Показать на карте
Южный
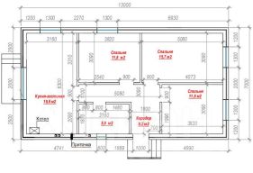
Объект 2293. Продается: Просторный , качественный дом в п. Южном, СНТ ''Кубаночка''.Планировка: Общая площадь 73 кв.м. Просторная кухня гостиная , три спальни, санузел, веранда с навесом. Дом продается в идеальной предчистовой отделке, натяжные потолки, радиаторы, электрокотел, теплый пол. Дом очень теплый, построен из кирпича, при строительстве использовались качественные материалы. Коммуникации: фундамент ленточный 1 метр глубиной,высокий цоколь, цокольная плита толщиной 15см, наружные стены из облицовочного кирпича, пеноплекса толщиной 5см и отсевного блока, внутренние стены из кирпича, крыша металлочерепица, утеплена в 15см, септик дренажный 12м.куб., свет 15 кВт, вода скважина, газ центральный- есть возможность подключить. В доме сделана качественная предчистовая отделка, установлена система ''Теплый пол'' по всему первому этажу кроме спальни. Земельный участок: Участок 3 сот., отмостка, парковочное место, откатные ворота. Расположение: Находится в экологически чистом районе, вся инфраструктура в шаговой доступности. Преимущества: Очень качественный дом для комфортного проживания. Школа и детский сад в шаговой доступности. В пешей доступности новая поликлиника, магазины и остановка . Тихий, зеленый район. Продажа от юр.лица.Добавьте это объявление в избранное, чтобы не потерять. Остались вопросы? Звоните, с радостью отвечу на них.
73 м2
1 этаж
Кирпич
- Показать контакты
- Добавить в избранное
73 м2
1 этаж
Кирпич
7 000 000
95 890 /м2
