Коттедж, с. Верхневеселое Показать на карте
с. Верхневеселое
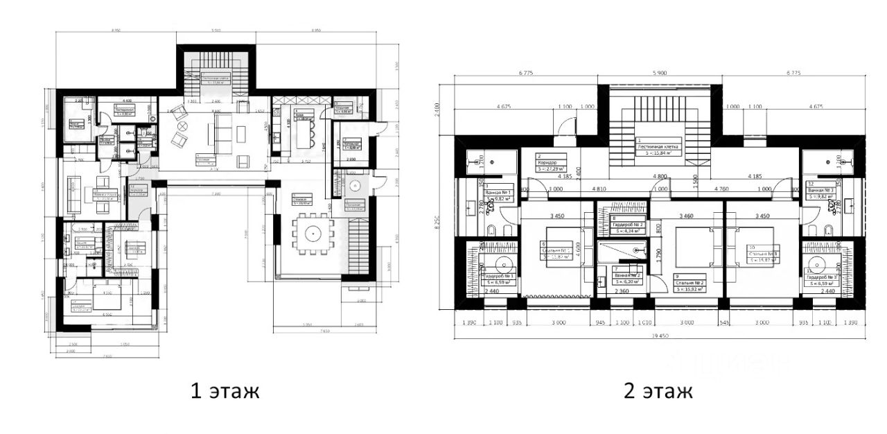
Новый красивый качественный дом. Расположен в районе элитной коттеджной застройки. Адлерский район, микрорайон Верхнее Веселое. Местоположение дома самое лучшее. К морю на шикарные пляжи, в Сириус и Имеритинскую набережную с ресторанами, фонтанами, современной прогулочной зоной 10 минут на автомобиле. В Сириусе расположены Олимпийские объекты с множеством спортивных школ, спортивных арен. Самые лучшие в Сочи образовательные учреждения, новый современный концертный зал. До лучшего в России горнолыжного курорта Красная поляна 20-30 минут на автомобиле. В Красной поляне также многочисленные развлекательные, спортивные заведения и мероприятия, единственное в Южном регионе Казино. До аэропорта в Адлере 10 минут на автомобиле. В самом микрорайоне рядом с домом также большое количество магазинов, есть аптеки, школа, детский сад. Идеальный подъезд к дому. Закрытая территория на несколько домов. Раздвижные автоматические ворота на территорию дома. Открытый бассейн. Дом построен по проекту, на сваях. Наружная отделка дома выполнена из натурального дагестанского камня. Из окон и с балконов дома открывается панорамный вид на море и Олимпийский парк. Все коммуникации центральные - газ, свет, вода подключены. Документы полностью готовы к продаже. Сотрудничаю с риелторами.
330 м2
3 этажа
Монолит
- Показать контакты
- Добавить в избранное
330 м2
3 этажа
Монолит
95 000 000
287 879 /м2
