Дом, пос. Октябрьский Показать на карте
пос. Октябрьский
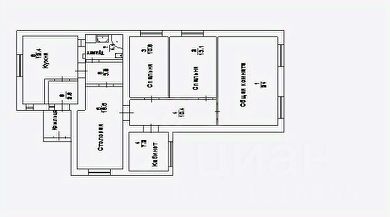
Арт. 132806699 Гарантия юридической безопасности сделки! С нами покупатель не рискует!Дом в поселке Октябрьский с земельным участком в не подтопляемой зоне.Дом 90 кв. м на участке 6 соток, одноэтажный с высоким цоколем. В доме 4 комнаты, кухня 12.4 кв. м. Ремонт косметический. Отопление печное. Водоснабжение от собственной скважины,горячая вода от водонагревателя, душевая кабинка установлена в доме. Санузел на улице, есть возможность оборудовать туалет в доме. В цокольном этаже просторные помещения, можно использовать под кладовки, мастерские или жилые комнаты.Участок ухожен, есть плодовые деревья, цветы и огород. Дом и земля в собственности. ПРОПИСКА!Легко купить: 1 взрослый собственникбез долговподходит под материнский капиталсертификаты Октябрьский — посёлок в Туапсинском районе Краснодарского края. Административный центр Октябрьского сельского поселения. Железнодорожная станция Пшиш на ветке ''Армавир—Туапсе'' Северо-Кавказской железной дороги. Поселок находится в стороне от федеральной трассы в окружении гор. В настоящее время Октябрьский активно облагораживают: построили современные детские и спортивные площадки, около Дома Культуры разбили уютный сквер с беседкой, дороги отремонтировали, на улицах чисто, везде стоят новые мусорные контейнеры и урны.Инфраструктура:продовольственные магазинырынокхозяйственный и строительный магазиныостановки общественного транспортажелезнодорожная станция ''Пшиш''школадетский садклубдетская и спортивная площадкиЗвоните!Рады будем ответить на все Ваши вопросы!
90 м2
1 этаж
Дерево
- Показать контакты
- Добавить в избранное
90 м2
1 этаж
Дерево
3 650 000
40 556 /м2
