Таунхаус, Имени Иосифа Васильева, 23 Показать на карте
Прикубанский
Краснодар
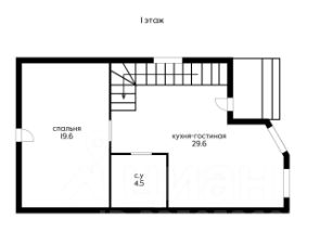
Продаем собственные объекты (предложение от инвестора).НОВОГОДНЯЯ АКЦИЯ: 15% (действует до 31 декабря 2025)СКИДКА по данному объекту = 2 251 050 руб.ДОМ В ЭЛИТНОМ ПОСЕЛКЕ - ПО ЦЕНЕ КВАРТИРЫ!Двухэтажный таунхаус 134 м2 и земельный участок 242 м2Акционная стоимость = 95 265 руб./м2, в стоимость входит земельный участок (!)Адрес: г. Краснодар, мкр-н Новая Елизаветка, ул. им. Иосифа Васильева, дом 23/1ПРЕИМУЩЕСТВА:• собственные парковочные места (24/7)• отсутствие множества соседей за стенами• земельный участок в собственность возможность размещения собственного сада, беседки, бассейна, зоны барбекю и т.д• отсутствие посторонних на территории ЖК• комфортную и безопасную зону для проживания и прогулок для детей и взрослых• многое другое ОСОБОЕ ПРЕИМУЩЕСТВО:• менее 2-х часов на автомобиле по платной высокоскоростной трассе до пляжей Анапы, Витязево, Крымского моста, поскольку данный ЖК находится всего в 10 км. от новой трассы (западный объезд Краснодара) - Вы всегда быстро (без пробок) и с удовольствием доедете до моря.ТАУНХАУС:• кадастровый номер: 23:43:0114001:4064• площадь: 133,9 м2• количество комнат: 5 + кухня• материал стен: газоблоки• отделка: черноваяКоммуникации (централизованные): • электричество (ввод в дом, минимальная разводка по дому)• газоснабжение (ввод в дом, без разводки по дому)• водоснабжение (ввод в дом, без разводки по дому)• водоотведение/канализация (ввод в дом, без разводки по дому)ЗЕМЕЛЬНЫЙ УЧАСТОК:• кадастровый номер: 23:43:0114001:2216• площадь: 242 м2• категория земель: Земли населенных пунктов• вид разрешенного использования: Блокированная жилая застройкаНОВАЯ ЕЛИЗАВЕТКА - микрорайон бизнес-класса, закрытого типа, совмещающий в себе коттеджный поселок, малоэтажную многоквартирную застройку, а также полноценную собственную инфраструктуру высокого уровня, а именно: Собственная инфраструктура:•средняя общеобразовательная школа 75 (филиал)•детский сад Солнечный зайчик•часовня•детские площадки для малышей•спортивные площадки для взрослых•парк с ландшафтным дизайном•озеро с зонами для отдыха•ресторан с видом на озеро•велодорожки по всей территории поселка•фитнес-центр•торговый центр, супермаркет•КПП•круглосуточная система видеонаблюдения•курсирующие патрули охраны правопорядка (на гольф-карах)•многое другое
134 м2
2 этажа
- Показать контакты
- Добавить в избранное
134 м2
2 этажа
12 755 950
95 194 /м2
