Часть дома, Калинина, 18 Показать на карте
Прикубанский
Краснодар
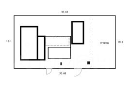
Продается 1/2 жилого кирпичного дома с отдельным въездом для авто. Земельный участок ИЖС. Владение более 5 лет. Полная цена в ДКП. Межевой план свежий, выполнен согласно действующего законодательства. К сделке готовы все документы, полный пакет уже у нотариуса. О доме:Дом угловой, у каждого владельца свой вход и въезд. К дому ведет асфальтированная дорога. Земельный участок 4 сотки разделен забором из металлопрофиля. Кто смотрел ''частички'' понимает о чем речь и в чем преимущество - соседи не ходят через ваш двор. Все окна металлопластиковые выходят на 3 стороны. 2 жилые полноценные комнаты, небольшая кухня, санузел в доме. Тихий двор. Строение кирпичное. Центральные водо и газоснабжение, отопление - индивидуальный газовый котёл, Канализационный септик. Есть хозяйственные постройки, сарай. В доме имеется подвал и чердак. Есть возможность сделать к дому пристройку, оборудовать навес.Остается техника - холодильник, телевизор, сплит-система, приготовительная газовая плита.Лицевые счета ресурсоснабжающих организаций у владельцев каждой половины дома разделены. Локация:Важно! Посёлок Кирпичного завода, входит в черту гор. Краснодара. Прописка городская. Есть огород и доп.земельный участок в пользовании. В поселке есть детский сад 50, конечная остановка 85 маршрута до ФМР, Авроры, ул. Зиповской, ул. Российской. В непосредственной близости в районе Рубероидного завода находится школа и поликлиника, новый ФОК (спорткомплекс). Недалеко расположена река Кубань, Кубанский Аграрный Университет КубГАУ, парк Дендрарий, в районе Западного обхода расположены крупные супермаркеты.Можно использовать для постоянного проживания или под дачу. Транспортная доступность:Автобусы 119, 10, 11 , маршрутные такси 85, 109, 110а в различные районы города. Остановки автотранспорта находятся рядом. Рядом трасса Краснодар - Елизаветинская, ограждённая шумоизоляционными щитами. Для вас:Полное юридическое сопровождение сделки на всех этапах.Приглашаю на просмотр!
40 м2
Кирпич
- Показать контакты
- Добавить в избранное
40 м2
Кирпич
3 250 000
81 250 /м2
