1-к, Небуг Показать на карте
Небуг
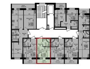
Продаётся студия в строящемся доме (Литер 4), срок сдачи: III-кв. 2027, общей площадью 17.37 кв.м., на 2 этаже. Новый жилой комплекс ''Botanica Hills'' от застройщика ''Название застройщика'' расположен по адресу Краснодарский край, Туапсинский район, село Небуг, Спортивная улица.
17 м2
2 / 18 этаж
Кирпич - монолит
- Показать контакты
- Добавить в избранное
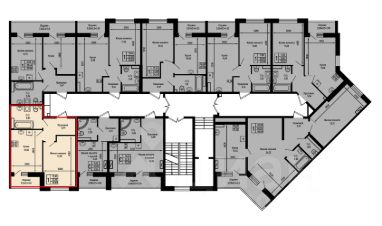
17 м2
2 / 18 этаж
Кирпич - монолит
5 905 800
340 000 /м2
Новостройка,
III-2027
III-2027
