Если цена в объявлении изменится, мы сразу сообщим вам об этом на электронную почту.
Нажимая «Подписаться», вы соглашаетесь с правилами.
продам дом, Бондаревой, 2а/217 990 000 ₽
21 сен 2023
Дата публикации объявления
Обн. 6 мая
Дата обновления объявления
15
Количество просмотров (+ просмотры за сегодня)
40 933 ₽/м²
Чистая продажа
Термин "Чистая продажа" означает, что в квартире никто не прописан или
есть куда выписаться и вывезти вещи. Это лучший вариант для покупателя.
Вероятность срыва сделки минимальна.
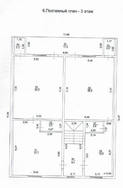
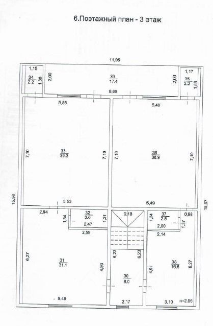
Этажей3
Площадь участка7 соток
Общая площадь439,5 м2
ЭлектричествоЕсть
Газоснабжениецентральное
Продается готовый объект для комфортного круглогодичного проживания и ведения прибыльного бизнеса на Азовском побережье Краснодарского края неподалёку от Грязевого вулкана Тиздар. До центра посёлка Пересыпь 500м. Дорога до моря занимает 2 минут. Год постройки 2014. Объект включает в себя: земельный участок площадью 7 соток на котором расположены: Большой дом площадью 439.5 кв. м. В доме для сдачи в нём можно выделить 10 укомплектованных плмещений и отдельную кухню общего пользования. Часть помещений имеют свои газовые или электрические плиты с необходимой посудой для приготовления пищи. Все помещения для сдачи в наём отдыхающим в рабочем состоянии, полностью оснащены мебелью, текстилем и всем необходимым, включая спит системы, холодильник, телевизор, душем.
Продается готовый объект для комфортного круглогодичного проживания и ведения прибыльного бизнеса на Азовском побережье Краснодарского края неподалёку от Грязевого вулкана Тиздар. До центра посёлка Пересыпь 500м. Дорога до моря занимает 2 минут. Год постройки 2014. Объект включает в себя: земельный участок площадью 7 соток на котором расположены: Большой дом площадью 439.5 кв. м. В доме для сдачи в нём можно выделить 10 укомплектованных плмещений и отдельную кухню общего пользования. Часть помещений имеют свои газовые или электрические плиты с необходимой посудой для приготовления пищи. Все помещения для сдачи в наём отдыхающим в рабочем состоянии, полностью оснащены мебелью, текстилем и всем необходимым, включая спит системы, холодильник, телевизор, душем. Дом полностью подходить для круглогодичного проживания! Подключены все коммуникации (электричество, интернет, вода-центральная + дополнительные резервуары для бесперебойной подачи воды, газ, септик-дренажный). Видеонаблюдение. Оборудованы мангальные зоны. Ухоженная дворовая территория облагорожена декоративными кустарниками, цветами, много роз. Парковочные места на 6 автомобилей. Удобный трансфер (Анапа аэропорт 50мин, Ж/Д вокзал Анапа 1час, Ж/Д вокзал Тамань 45 мин.) Документы на строения и земельный участок в порядке, и позволяют использовать объект как только для проживания, так и дополнительно для гостиничного обслуживания. По всем оставшимся вопросам звоните.