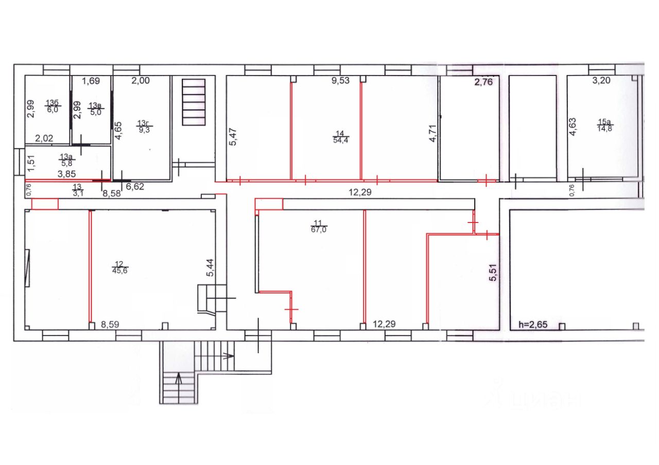
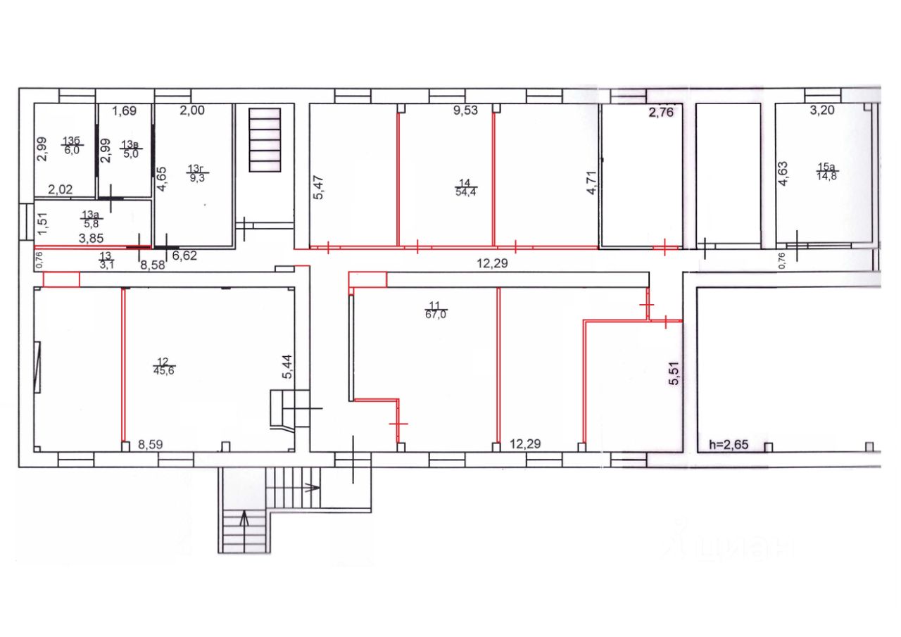
Собственник, сдам в долгосрочную аренду нежилое помещение под магазин, пункт выдачи, бытовые услуги, склад, сервис, пищевое производство, общая площадь 250м2, цоколь жилого дома, отдельный вход с улицы, первая линия (street retail) в Центральном районе Сочи, 2 зала + кухня + цеха + подсобки + 2 санузла + офис.
Возможен договор аренды с правом выкупа.
Коммунальные платежи арендатор оплачивает по тарифам.
Возможна аренда по частям.






