Если цена в объявлении изменится, мы сразу сообщим вам об этом на электронную почту.
Нажимая «Подписаться», вы соглашаетесь с правилами.
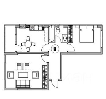
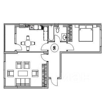
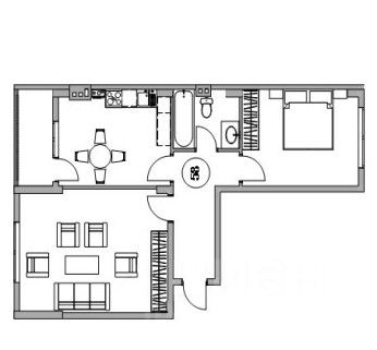
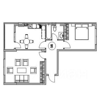
продам 2-к, Армавирская, 204/1 корп. 15 907 200 ₽
26 фев
Дата публикации объявления
Обн. 27 фев
Дата обновления объявления
2
Количество просмотров (+ просмотры за сегодня)
104 000 ₽/м²
Чистая продажа
Термин "Чистая продажа" означает, что в квартире никто не прописан или
есть куда выписаться и вывезти вещи. Это лучший вариант для покупателя.
Вероятность срыва сделки минимальна.
Застройщик компания ООО Экза предлагает 1-ые квартиры с разным метражом и 2-ые квартиры. Высота потолков в квартирах составляет 2,9 м. Площадь 1-ой квартиры от 42,5 м2. Площадь 2-ой квартиры от 56,2м2. В каждой квартире предусмотрены следующие помещения: санузел совмещенный, коридор, жилые комнаты, кухня, в большинстве квартир предусмотрены остекленные просторные лоджии. В каждой квартире индивидуальное отопление.
В ЖК Мечта каждый жилой блок состоит из 4х этажей. В отдельном жилом доме 60 квартир, из них 1комнатных-36 квартир, 2 комнатных-24 квартиры. Все квартиры с просторной планировкой и наличием остекленных лоджий. Высота стекол которых составляет 2,6м.
Застройщик компания ООО Экза предлагает 1-ые квартиры с разным метражом и 2-ые квартиры. Высота потолков в квартирах составляет 2,9 м. Площадь 1-ой квартиры от 42,5 м2. Площадь 2-ой квартиры от 56,2м2. В каждой квартире предусмотрены следующие помещения: санузел совмещенный, коридор, жилые комнаты, кухня, в большинстве квартир предусмотрены остекленные просторные лоджии. В каждой квартире индивидуальное отопление.
В ЖК Мечта каждый жилой блок состоит из 4х этажей. В отдельном жилом доме 60 квартир, из них 1комнатных-36 квартир, 2 комнатных-24 квартиры. Все квартиры с просторной планировкой и наличием остекленных лоджий. Высота стекол которых составляет 2,6м. Особенностью данного решения является качественно изменить стиль жилого помещения, обеспечив его функциональность и расширение свободной площади. Витражное остекленение позволяет естественным образом осветлить комнату, делая ее более уютной и светлой.