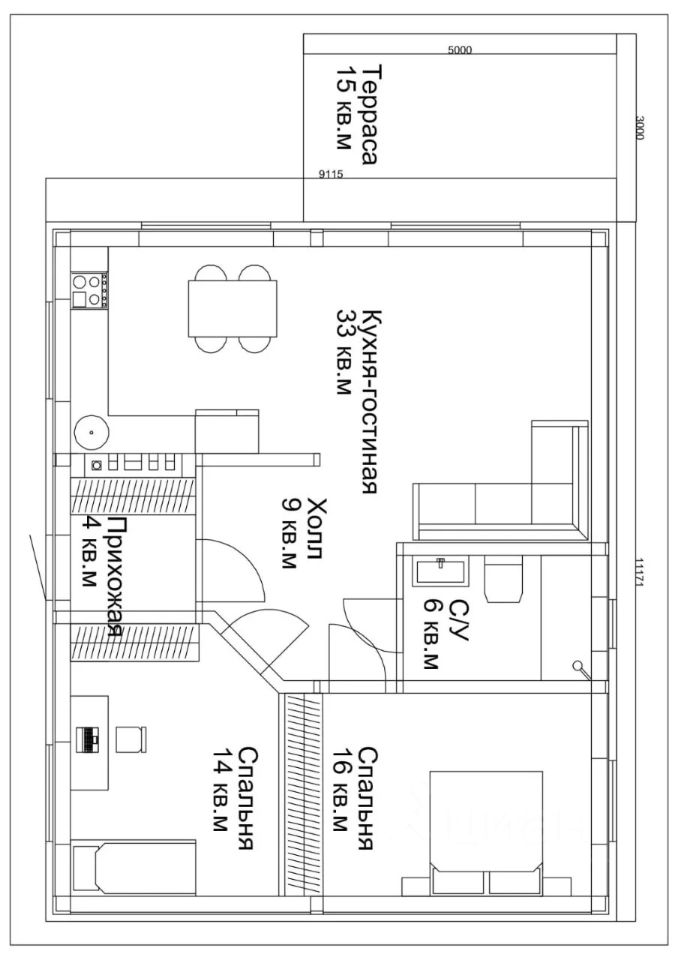
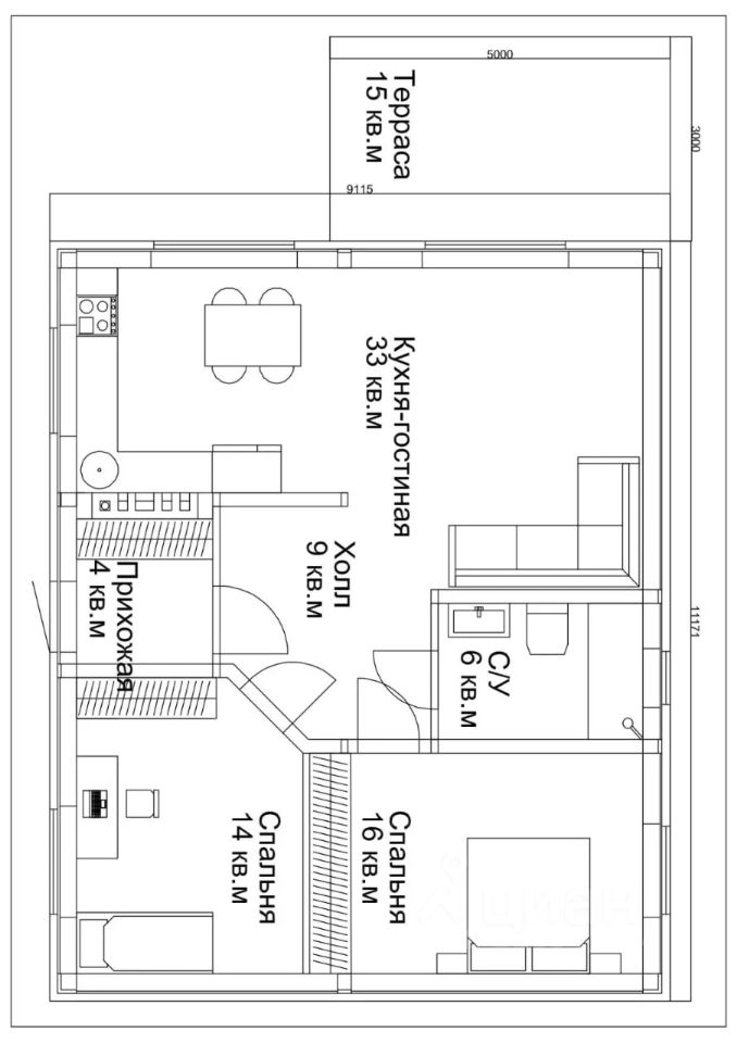
ВНИМАНИЕ! В продаже добротный дом 118 м/2 на 4.8 сот. земли ИЖС. Дом сложен из керамического кирпича(наружная стена), газо-блок(внутренняя). Крыша(мягкая кровля) утепленная, подшитая. В доме 2-е спальни 16 и 14 м/2, кухня-гостиная 33м/2 с выходом на просторную террасу 15м/2. В дом заведена вода, скважина( 2-й водоносный) и электричество 15кВт. Дом продается без ремонта, но есть возможность его сделать по вашему дизайн-проекту, помощь дизайнера в случае необходимости, тоже обсуждается. Так же, есть возможность благоустроить и территорию участка с учетом всех ваших пожеланий (баню, ,бассейн, беседку, зону барбекю: открытую/закрытую, озеленение и т. д.)
Звоните, постараюсь ответить на все ваши вопросы и организую показ.



















