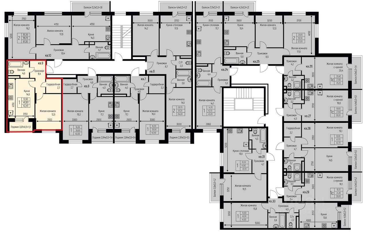
Продаётся 1-комнатная квартира в строящемся доме (Литер 9), срок сдачи: IV-кв. 2026, общей площадью 42.4 кв.м., на 2 этаже. Новый жилой комплекс ''Nova Vita'' от застройщика МЕТРИКС DEVELOPMENT расположен по адресу Краснодар, посёлок Берёзовый, улица имени А.Н. Лодыгина.