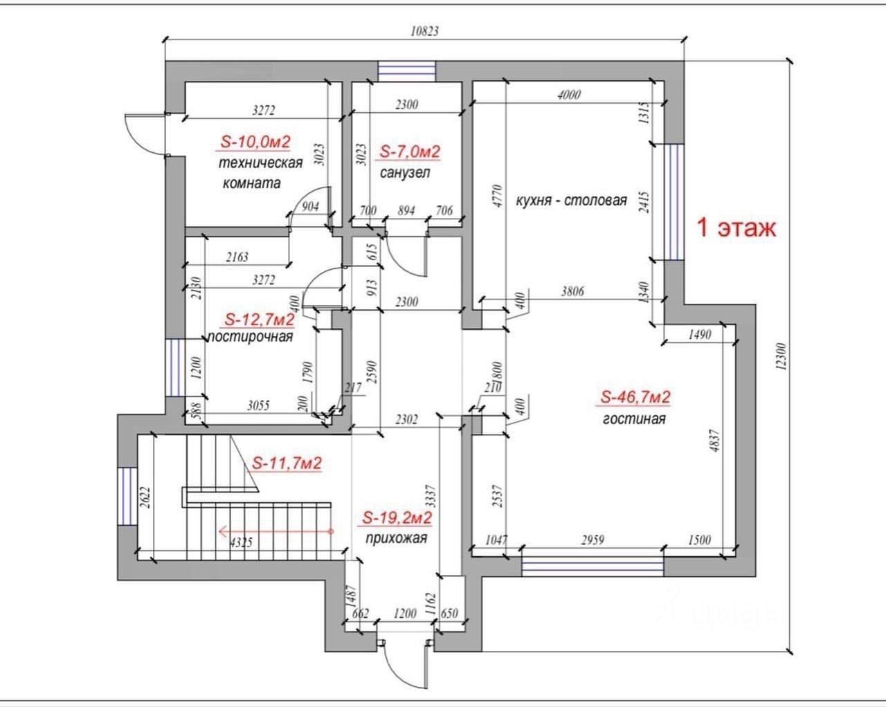
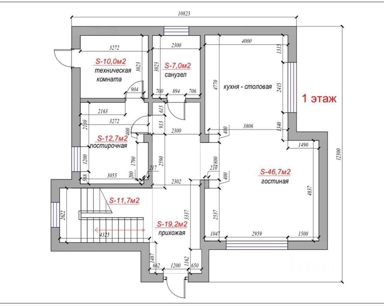
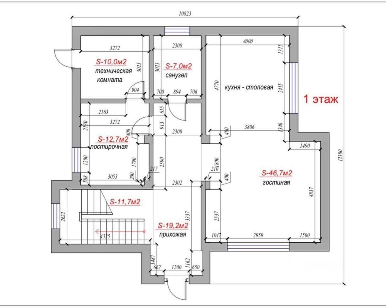
Элитный дом с гостевым домиком и гаражом. Три этажа под чистовую отделку — каркас из ЖБ-колонн, стены из керамзитоблока, высота потолков 3,4 м. Окна противовзломные, профиль 80 мм, цвет золотой дуб, энергосберегающие стекла с золотым отливом, входная дверь 160 кг, выполненная под заказ. Гостевой дом 90кв.м: полностью готов, с мебелью. Есть гараж и 2 парковочных места. Участок с тремя уровнями. Терраса 100кв.м., можно под бассейн. По периметру — капитальное ограждение.
Свет 15 кВт, три фазы. Городская вода, газ на участке, септик на 8 человек.
Рядом Министерские озёра, остановка в 100 метрах. Удобный зaeзд c улиц Макаренкo и Рaздoльнoй. Звоните в любое время за дополнительной информацией и фото.


































