В станице Ивановская продаем двухэтажное коммерческое здание. Локация: Краснодарский край, Красноармейский район, на въезде в станицу Ивановская вдоль федеральной трассы Москва-Крым. Максимально проездное место!
Площадь здания : 450,8 м2+пристойка и два склада по 400 кв.м.
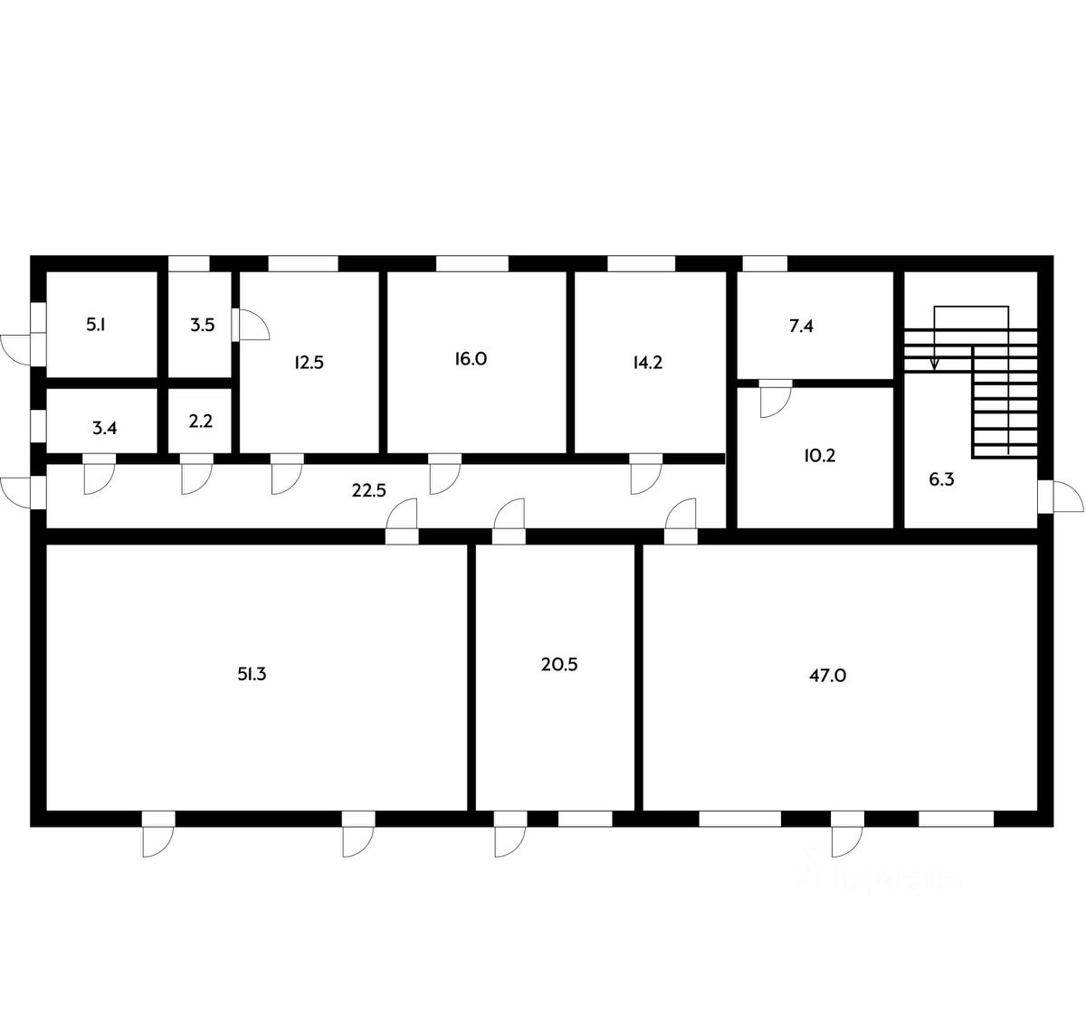
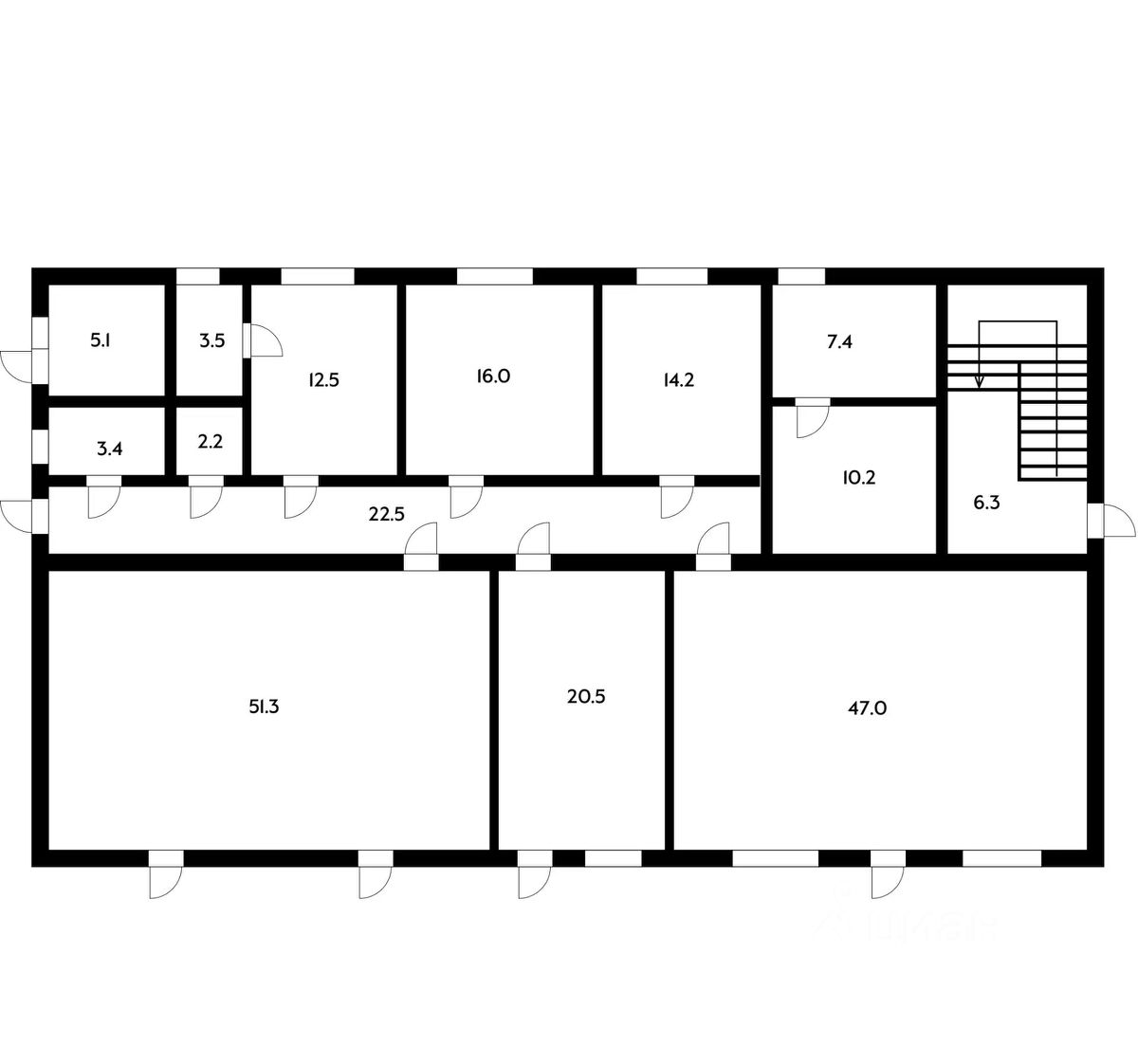
Первый этаж 226,4кв.м. весь с ремонтом! Все помещения с фасада здания с отдельными входами. До того как выставили на продажи была действующая коммерция. Арендная ставка на первом этаже 1000 руб., есть желающие снять данные помещения. На складские помещения то же есть арендаторы.
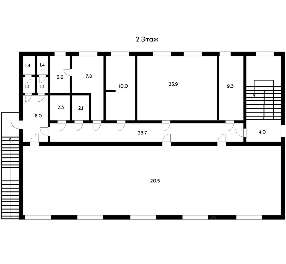
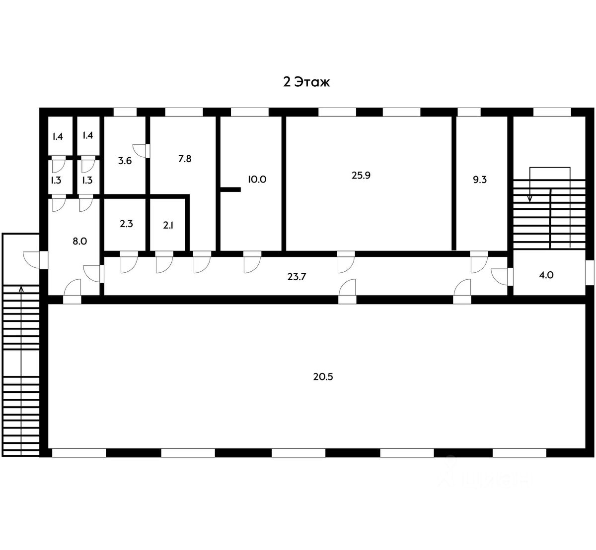
Второй этаж 224,4 кв. м. без ремонта с разводкой отопления и коммуникациями: планировали под банкетный зал с подсобными помещениями для кухни, персонала и сан. узлы.
В станице Ивановская продаем двухэтажное коммерческое здание. Локация: Краснодарский край, Красноармейский район, на въезде в станицу Ивановская вдоль федеральной трассы Москва-Крым. Максимально проездное место!
Площадь здания : 450,8 м2+пристойка и два склада по 400 кв.м.
Первый этаж 226,4кв.м. весь с ремонтом! Все помещения с фасада здания с отдельными входами. До того как выставили на продажи была действующая коммерция. Арендная ставка на первом этаже 1000 руб., есть желающие снять данные помещения. На складские помещения то же есть арендаторы.
Второй этаж 224,4 кв. м. без ремонта с разводкой отопления и коммуникациями: планировали под банкетный зал с подсобными помещениями для кухни, персонала и сан. узлы.
Третий этаж: мансарда, планировали под гостиницу.
Перед зданием есть большая асфальтированная парковка для клиентов.
Официально узаконен съезд с трассы к нашему зданию!!!
Площадь участка : 8.99 сотки Фасад : 31 м Глубина : 30 м Категория земель - Земли населенных пунктов Вид разрешенного использования - придорожный сервис с магазинами, кафе и другой сферой обслуживания.
Соседний участок 21 сотка принадлежит нам, он то же продается, можем продать все вместе.
Построено с разрешением, введено по акту ввода! Подключены все центральные коммуникации. Электричество : 20 кВт, Отопление : Газовое , котел. Водоснабжение : Центральное, Канализация : Септик.