Термин "Чистая продажа" означает, что в квартире никто не прописан или
есть куда выписаться и вывезти вещи. Это лучший вариант для покупателя.
Вероятность срыва сделки минимальна.
Продам двух комнатную квартиру в ЖК На Репина — монолитно-кирпичный дом бизнес-класса от надежного застройщика Нефтестройиндустрия-Юг. Высокое качество строительства, просторные помещения с потолками 3 м, закрытая охраняемая территория с видеонаблюдением. Отличный выбор для семьи и предпринимателей!
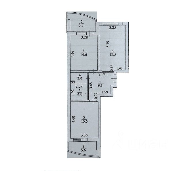
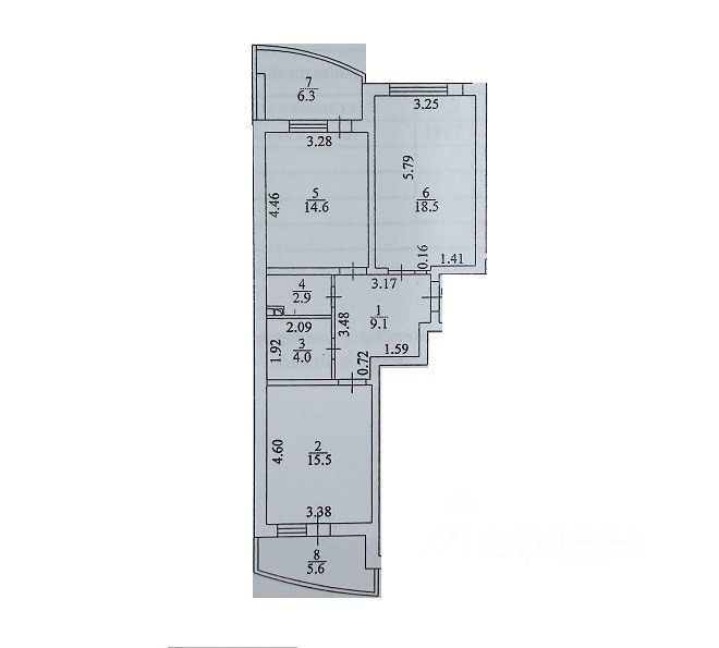
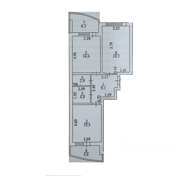
Квартира расположена на 1 этаже, в предчистовой отделке идеальный вариант для тех, кто хочет создать интерьер по своему вкусу. Планировка с окнами на две стороны дома обеспечивает естественное освещение и свежий воздух. Помещение подходит как для комфортного проживания, так и под коммерческую деятельность (офис, салон, мастерская).
Закрытый благоустроенный двор с зеленой зоной и современной системой видеонаблюдения обеспечивает безопасность и комфорт для жителей.
Продам двух комнатную квартиру в ЖК На Репина — монолитно-кирпичный дом бизнес-класса от надежного застройщика Нефтестройиндустрия-Юг. Высокое качество строительства, просторные помещения с потолками 3 м, закрытая охраняемая территория с видеонаблюдением. Отличный выбор для семьи и предпринимателей!
Квартира расположена на 1 этаже, в предчистовой отделке идеальный вариант для тех, кто хочет создать интерьер по своему вкусу. Планировка с окнами на две стороны дома обеспечивает естественное освещение и свежий воздух. Помещение подходит как для комфортного проживания, так и под коммерческую деятельность (офис, салон, мастерская).
Закрытый благоустроенный двор с зеленой зоной и современной системой видеонаблюдения обеспечивает безопасность и комфорт для жителей.
ЖК расположен рядом с центром города, что обеспечивает удобный доступ к ключевым точкам Краснодара. В в минутах ходьбы остановки общественного транспорта, удобный выезд на трассу М4 для поездок за город .
В 10и минутах доступности весь необходимый набор объектов: торговый центр Красная Площадь, Краснодарское высшее военное училище, аптеки, магазины, кафе и медицинские учреждения. Район активно развит , здесь удобно жить и работать.
Один собственник, квартира в собственности более 5 лет, без обременений и долгов. Документы тщательно проверены, готовы к быстрой и безопасной сделке.
Звоните уже сегодня, чтобы узнать подробности и организовать просмотр! Уникальное предложение в лучшем районе Краснодара.