Если цена в объявлении изменится, мы сразу сообщим вам об этом на электронную почту.
Нажимая «Подписаться», вы соглашаетесь с правилами.
продам 3-к, Суворова, 351 950 000 ₽
7 фев
Дата публикации объявления
Обн. 3 мая
Дата обновления объявления
37 938 ₽/м²
Чистая продажа
Термин "Чистая продажа" означает, что в квартире никто не прописан или
есть куда выписаться и вывезти вещи. Это лучший вариант для покупателя.
Вероятность срыва сделки минимальна.
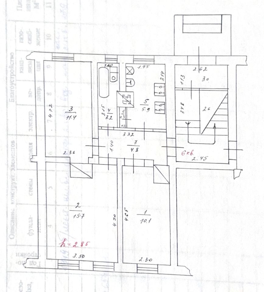
Квартира без обременений, 3 полноценные комнаты, коридор, кухня и с/у. (см. схему планировки) Требуется ремонт - все на фото. Централизованные коммуникации: - Газ - Холодная вода - Электричество - Канализация
Прекрасный поселок с развитой инфраструктурой. 3 общеобразовательные школы, детские сады, школа искусств, клуб юных техников, свой стадион и спортивные секции. Профилакторий и поселковая больница. 40 минут до г. Краснодар ( Машина, Автобус, Электричка - жд станция рядом) 1,5 часа до г. Новороссийск и 2 часа до г. Геленджик 2,5 часа до г. Сочи 3 часа до г. Ялта (Крым) В окружении поселка прекрасная природа, озера и предгорье Кавказа.
Квартира без обременений, 3 полноценные комнаты, коридор, кухня и с/у. (см. схему планировки) Требуется ремонт - все на фото. Централизованные коммуникации: - Газ - Холодная вода - Электричество - Канализация
Прекрасный поселок с развитой инфраструктурой. 3 общеобразовательные школы, детские сады, школа искусств, клуб юных техников, свой стадион и спортивные секции. Профилакторий и поселковая больница. 40 минут до г. Краснодар ( Машина, Автобус, Электричка - жд станция рядом) 1,5 часа до г. Новороссийск и 2 часа до г. Геленджик 2,5 часа до г. Сочи 3 часа до г. Ялта (Крым) В окружении поселка прекрасная природа, озера и предгорье Кавказа.
в 2025 году осенью проведена официальная оценка стоимости квартиры независимой оценочной компанией. (Документ об оценке с подробным описанием квартиры и ее стоимости, с подробным описанием региона и окружения - предоставлю по запросу) Соответственно цену указали и сформировали отталкиваясь от реальной рыночной стоимости.