Продается шикарный новый дуплекс с прекрасной локацией в районе Ул. Кореновской.
Оформлен как дом. Никаких долей.
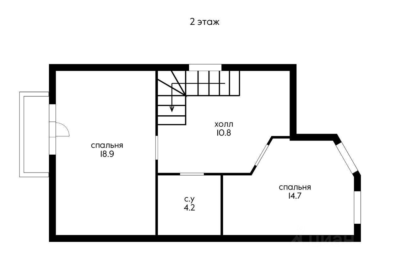
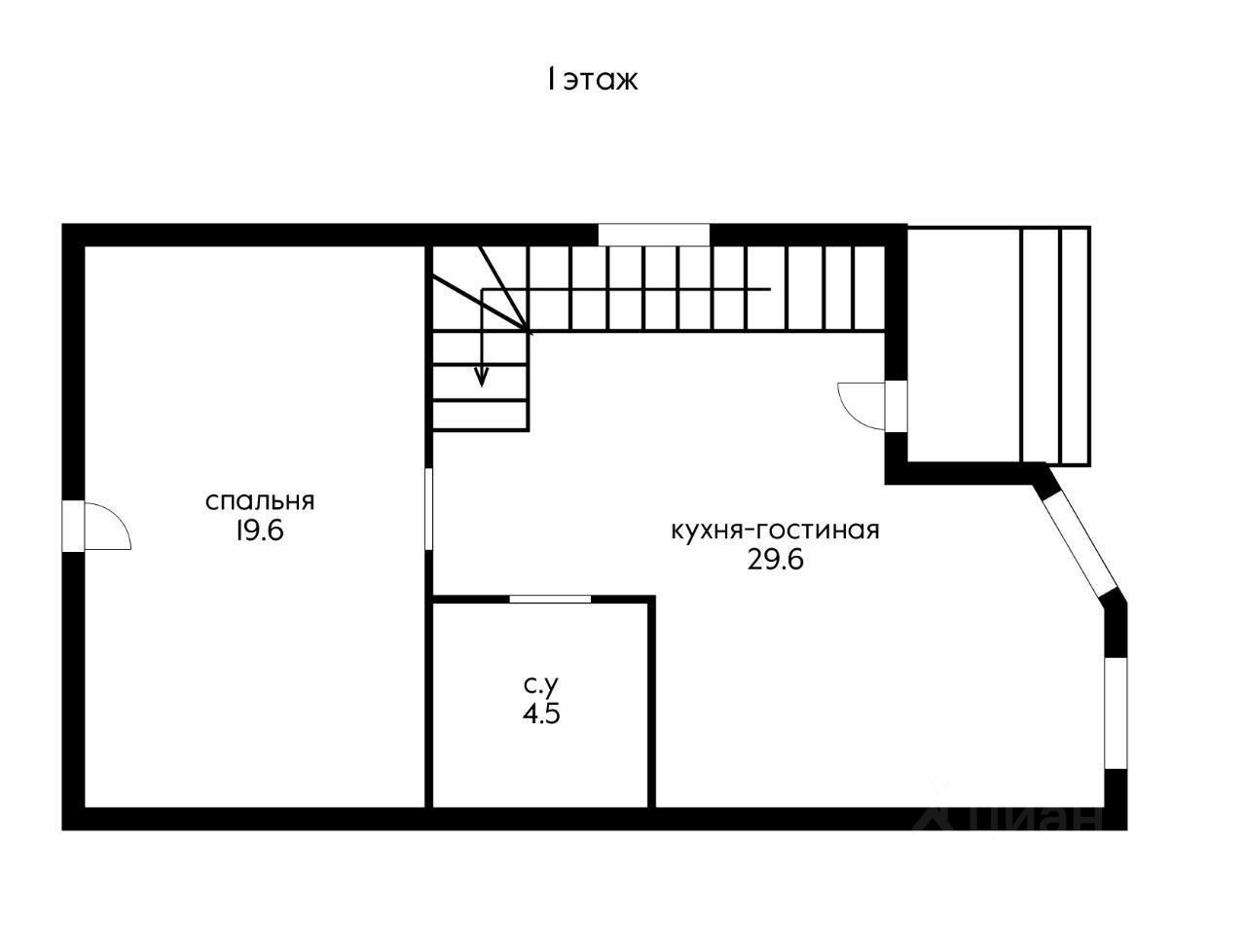
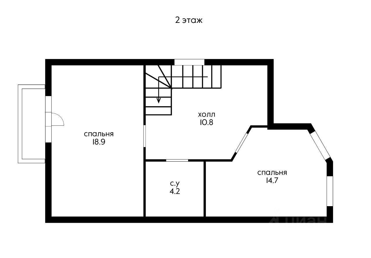
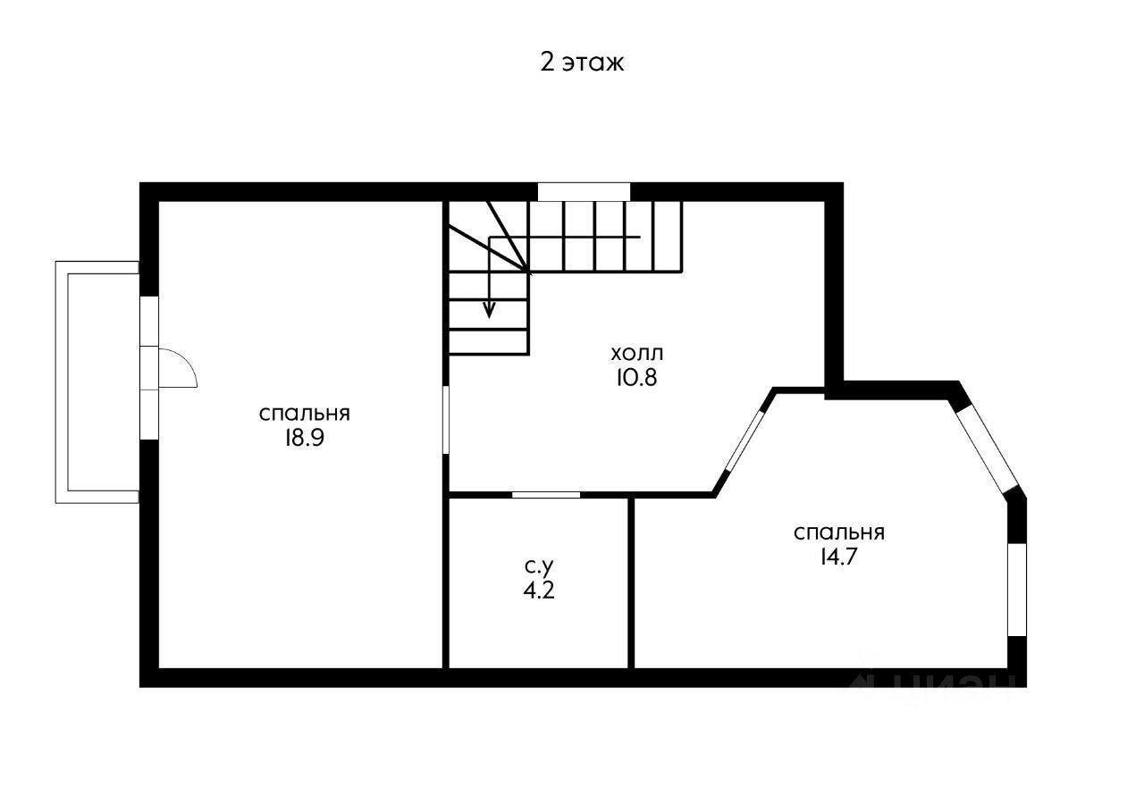
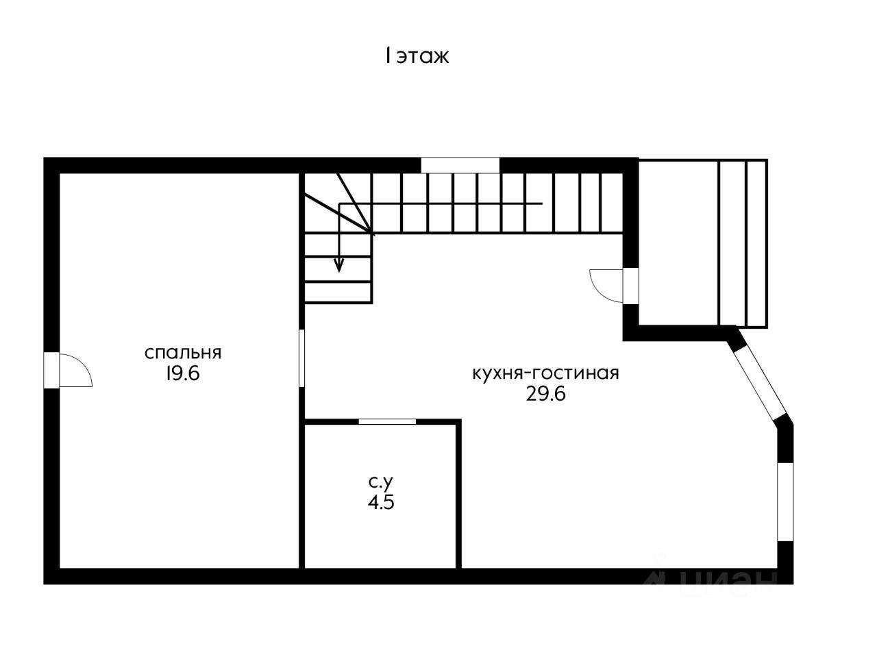
Площадь 109,6 м2. Дом 2-этажный, построен из кирпича по всем современный технологиям. Очень удобная планировка: просторная кухня-гостиная 29,6 кв. м., 3 спальни, 2 санузла. Сделана качественная предчистовая отделка, разводка электрики и сантехники.
Расположен на участке земли 2 сотки. Электричество, газ центральные!
Клубный посёлок из 8-ми дуплексов. Огороженная территория, вымощенная дорогостоящей брусчаткой.
Звоните!
Арт:1013435829















