Продам дом, два этажа плюс цоколь в живописном месте с видом на горы.
Основательно построенный дом проверенный годами.
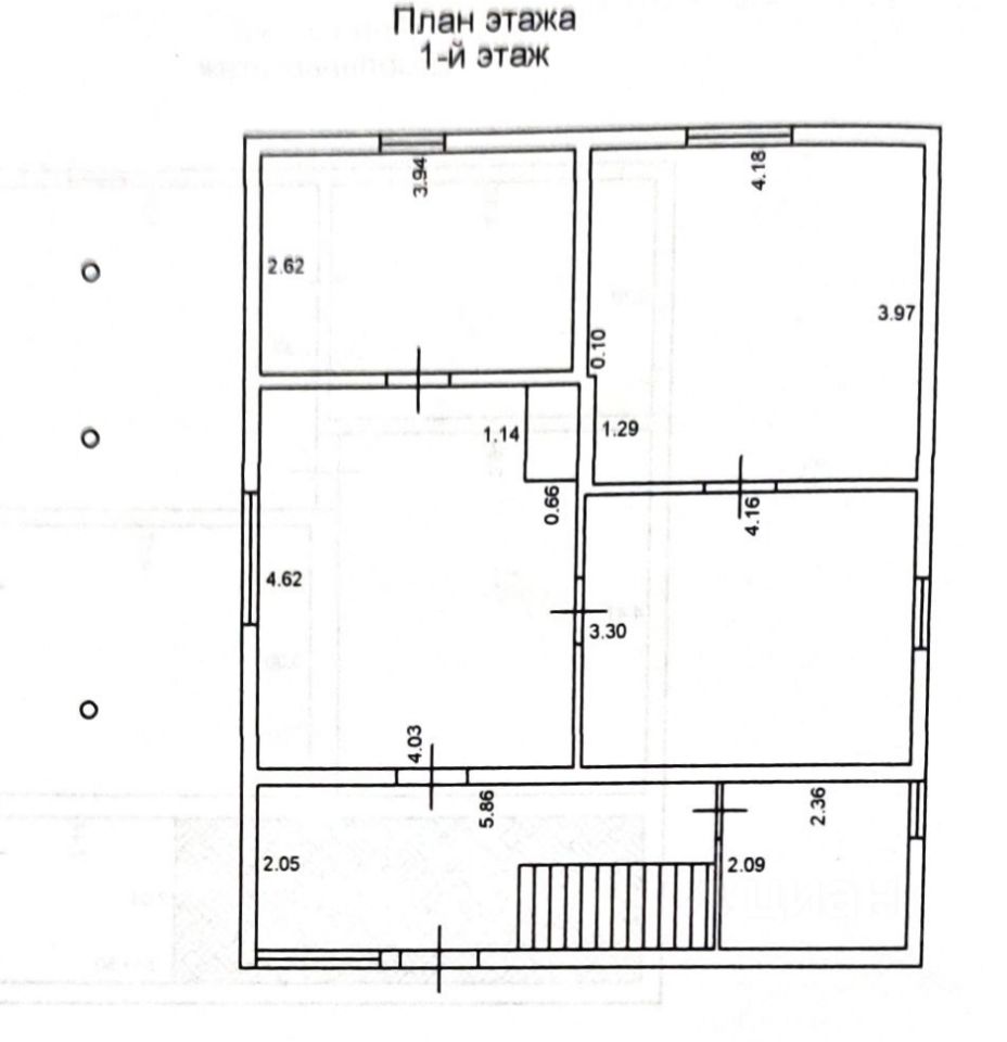
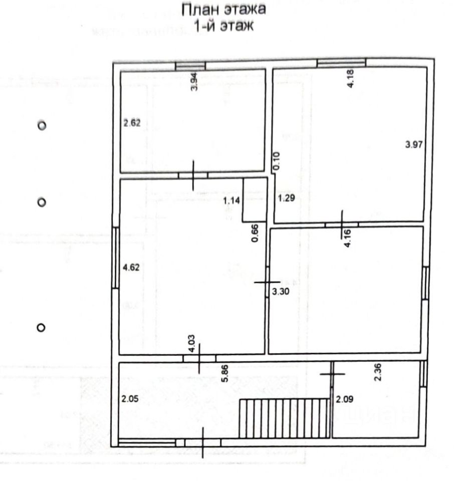
Дом хорошо подходит под проживание и одновременную сдачу т к на второй этаж есть вход из дома а так-же с улицы. Сан узел на каждом этаже свой.
Окна пластиковые в хорошем состоянии.
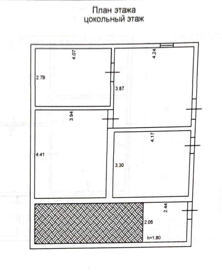
Для использования второго этажа и цоколя необходимы вложения.
Реальному покупателю хороший торг.
Можно в ипотеку. Объект находится в собственности, всё грамотно оформлено, дом и земельный участок, что даёт вам уверенность в безопасности покупки и владением этого объекта.
Звоните! С удовольствием покажу дом!

















