Термин "Чистая продажа" означает, что в квартире никто не прописан или
есть куда выписаться и вывезти вещи. Это лучший вариант для покупателя.
Вероятность срыва сделки минимальна.
Этажей2
Площадь участка1,2 соток
Общая площадь76,4 м2
Материал домакирпич
ЭлектричествоЕсть
Газоснабжениецентральное
Продаётся таунхаус с ремонтом, мебелью и техникой в спокойном районе частной застройки! Передан задаток, идёт подготовка к сделке!
Идеальное решение для любителей частных домов с небольшим количеством земли! На своей личной, огороженной металлическим забором территории, хватит места для собственного бассейна и зоны отдыха, которая там уже есть.
Дополнительное преимущество в том, что по документам это трёхкомнатная квартира, поэтому не нужно никаких излишних согласований в рамках использования прилегающей земли. При этом Вам никто не помешает встречать вечера и рассветы всей семьёй, с друзьями на своём дворе.
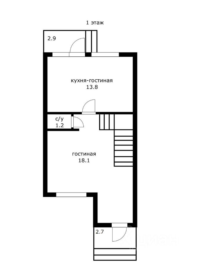
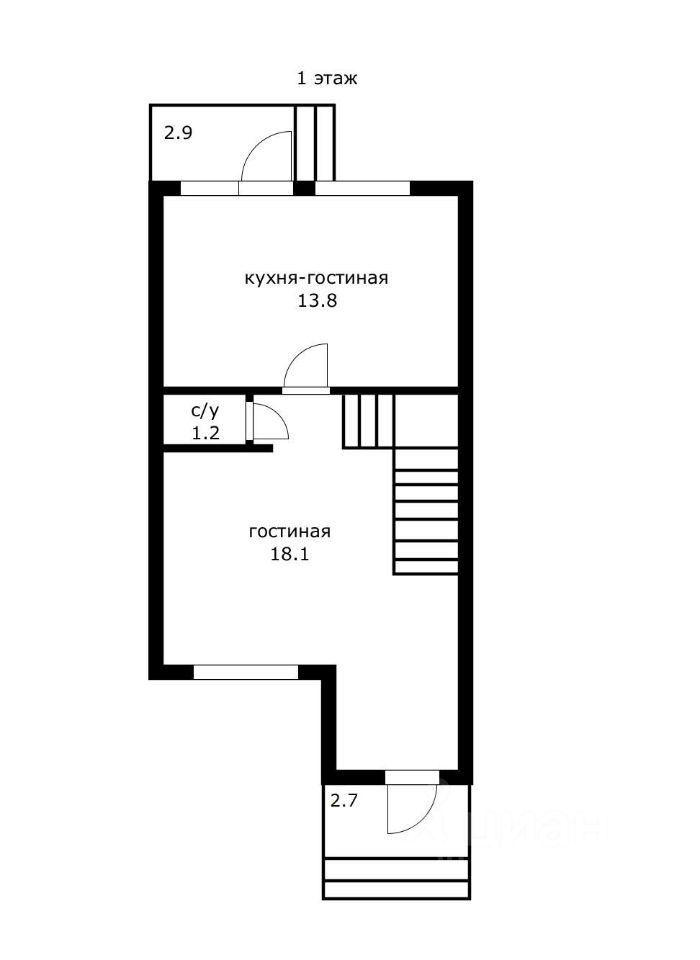
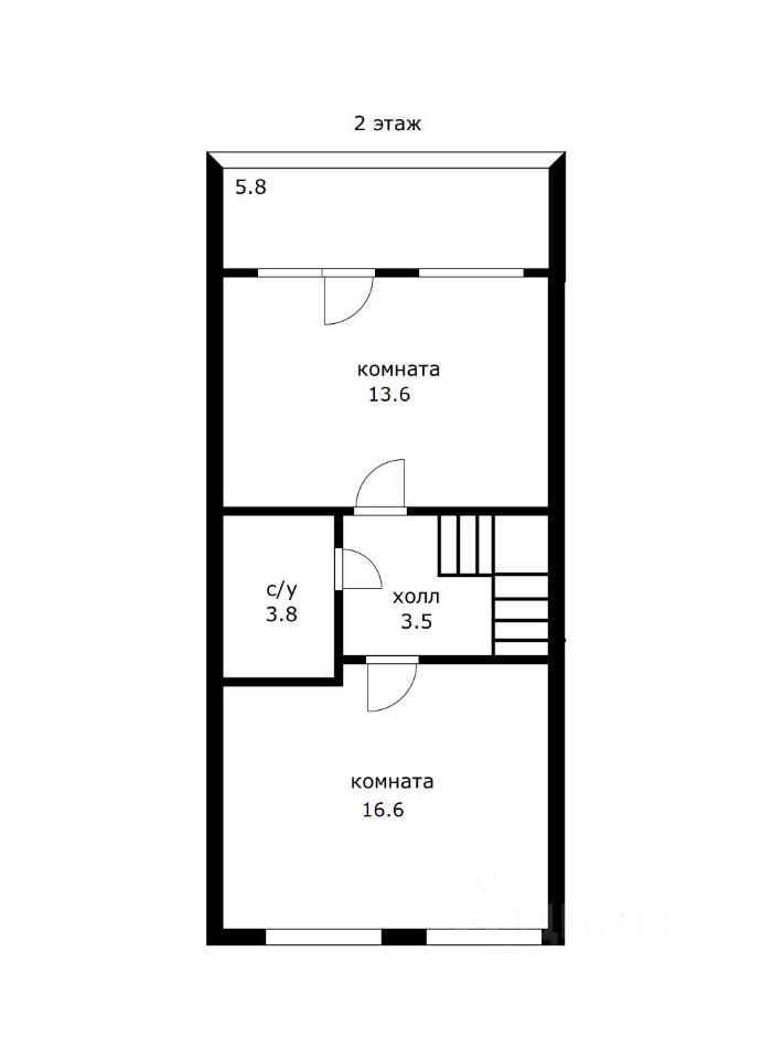
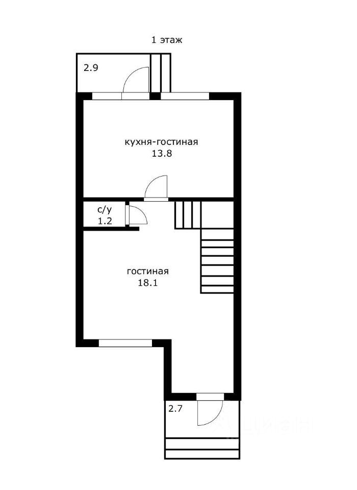
Планировка комфортная - на первом этаже светлая кухня-гостиная с двумя оконными проёмами и выходом на веранду, комната и санузел.
Продаётся таунхаус с ремонтом, мебелью и техникой в спокойном районе частной застройки! Передан задаток, идёт подготовка к сделке!
Идеальное решение для любителей частных домов с небольшим количеством земли! На своей личной, огороженной металлическим забором территории, хватит места для собственного бассейна и зоны отдыха, которая там уже есть.
Дополнительное преимущество в том, что по документам это трёхкомнатная квартира, поэтому не нужно никаких излишних согласований в рамках использования прилегающей земли. При этом Вам никто не помешает встречать вечера и рассветы всей семьёй, с друзьями на своём дворе.
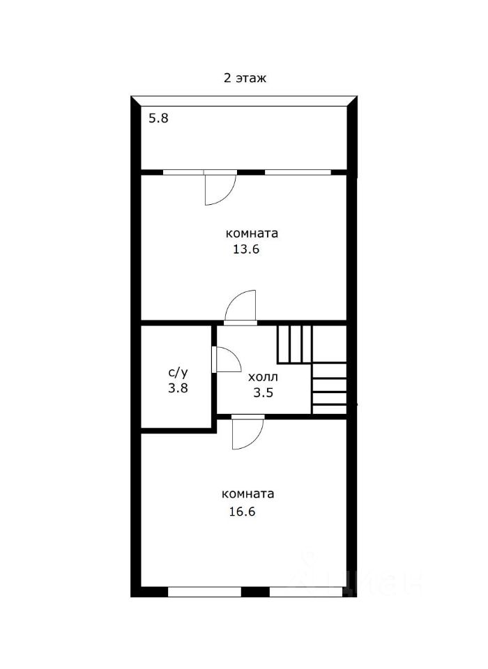
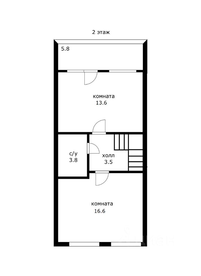
Планировка комфортная - на первом этаже светлая кухня-гостиная с двумя оконными проёмами и выходом на веранду, комната и санузел. Поднимаясь на второй этаж по удобной широкой лестнице, видим ещё две спальни, второй санузел и ещё одна большая веранда с красивым видом на зеленые насаждения района. Документы готовы к продаже. 1015166346 Воспользуйтесь возможностью жить в своём тёплом и безопасном месте!