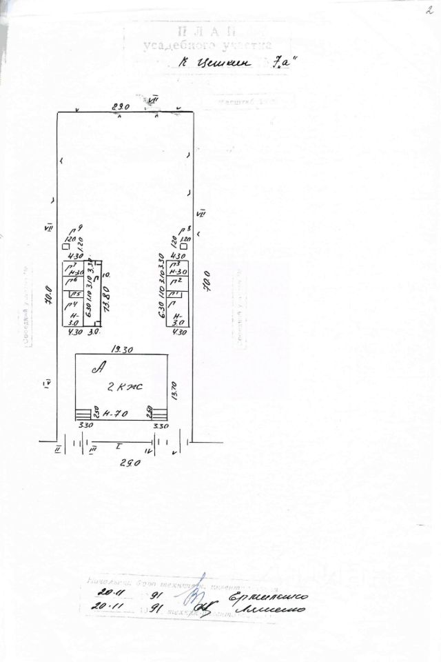
Дом находиться в Краснодарском крае с.Успенском,ул. Кл.Цеткин 7а, кв.1. площадью 210,9 кв.м. На участке: дом 2 этажа, гараж с ямой, летняя кухня подсобные помещения, погреб. Фундамент-стены кирпич-бетон. Кровля: дом - металлочерепица, хозпостройки - шифер. Индивидуальное отопление (газ),центральная канализация, электро-водоснабжение. Имеется фруктовый сад(грецкий орех, фундук, калина, вишня, черешня, яблоки, груши, слива медовая, персик, ежевика, малина, черная и красная смородина). В шаговой доступности детский сад (два на выбор), магазины, аптеки, детские площадки, автобусные остановки. Улица асфальтирована. Школы в равназначном удалении 15 мин.пешком.