Если цена в объявлении изменится, мы сразу сообщим вам об этом на электронную почту.
Нажимая «Подписаться», вы соглашаетесь с правилами.
продам дом, Ленина7 500 000 ₽
19 дек
Дата публикации объявления
Обн. вчера
Дата обновления объявления
2
Количество просмотров (+ просмотры за сегодня)
Турбо x8
93 750 ₽/м²
Чистая продажа
Термин "Чистая продажа" означает, что в квартире никто не прописан или
есть куда выписаться и вывезти вещи. Это лучший вариант для покупателя.
Вероятность срыва сделки минимальна.
Этажей1
Площадь участка4 сотки
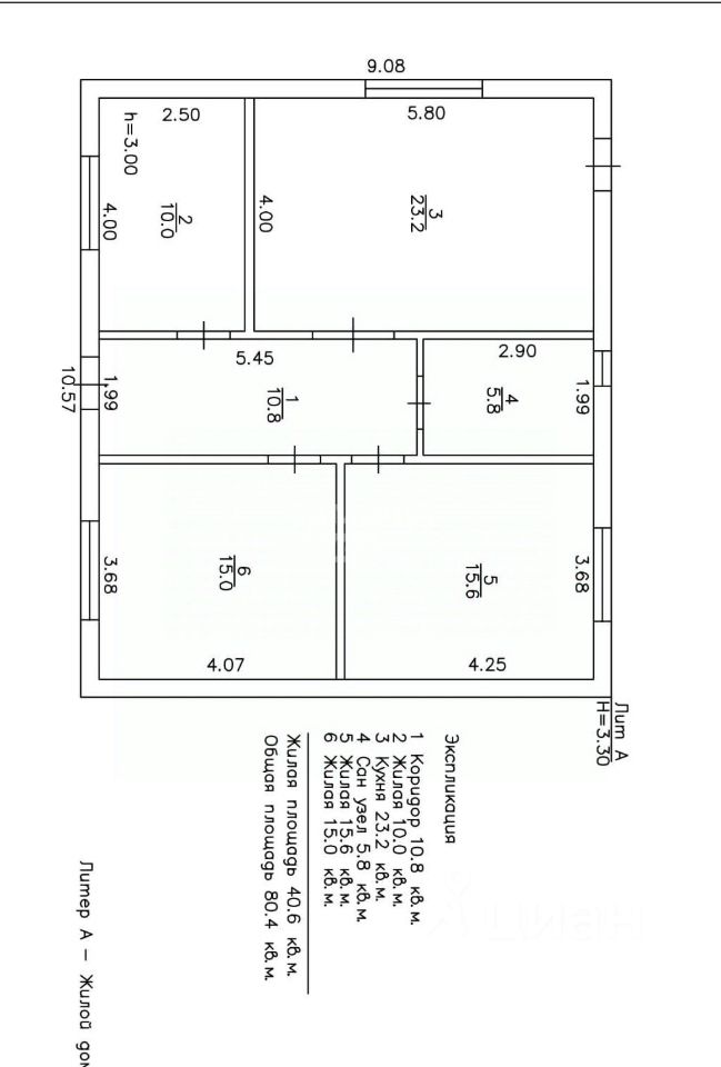
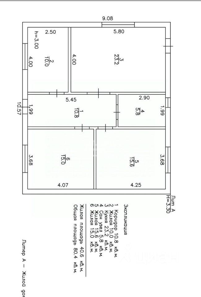
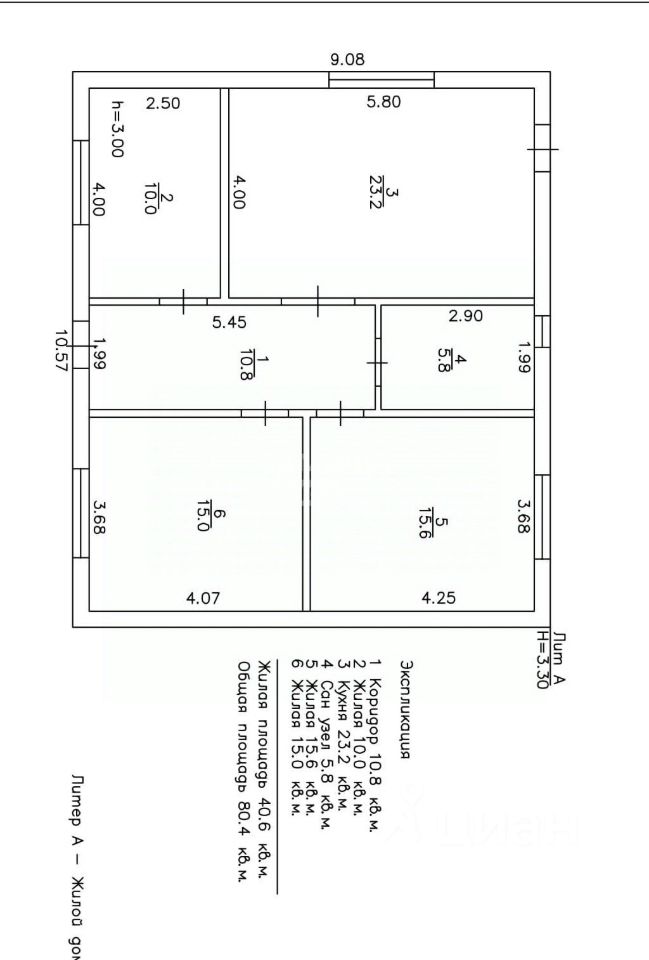
Общая площадь80 м2
Материал домакирпич
ЭлектричествоЕсть
Газоснабжениецентральное
Арт. 116508006 Ищете уютное жильё в спокойном месте? Предлагаем рассмотреть вариант приобретения добротного дома в Динском районе ст. Пластуновская, 5 км от Динской!!
Этот дом идеально подойдёт для тех, кто мечтает о жизни в окружении зелени и свежего воздуха. Станица большая и быстро развивающаяся ,с тремя школами и тремя дет.садами, что делает его удобным для семей с детьми.В станице есть река, где можно наслаждаться рыбалкой и отдохнуть от городской суеты.
Два дома с ремонтом, ремонт в процессе, что позволит вам сразу после покупки наслаждаться уютом и комфортом. В доме есть всё необходимое для комфортного проживания: две изолированные спальни, кухня-гостиная, прихожая , совмещенный санузел.
Арт. 116508006 Ищете уютное жильё в спокойном месте? Предлагаем рассмотреть вариант приобретения добротного дома в Динском районе ст. Пластуновская, 5 км от Динской!!
Этот дом идеально подойдёт для тех, кто мечтает о жизни в окружении зелени и свежего воздуха. Станица большая и быстро развивающаяся ,с тремя школами и тремя дет.садами, что делает его удобным для семей с детьми.В станице есть река, где можно наслаждаться рыбалкой и отдохнуть от городской суеты.
Два дома с ремонтом, ремонт в процессе, что позволит вам сразу после покупки наслаждаться уютом и комфортом. В доме есть всё необходимое для комфортного проживания: две изолированные спальни, кухня-гостиная, прихожая , совмещенный санузел.
Коммуникации также предусмотрены: центральное водоснабжение, газ, электричество, канализация септик. В стоимость входят : тротуарная плитка, забор по периметру, откатные ворота на автоматике. Хорошие соседи, широкая красивая улица.
Пока идет ремонт можете выбрать обои и плитку на свой вкус. Бронируйте сейчас и через три месяца будет вам счастье !!! Возможно строительство дома по вашему проекту на вашем участке, либо предложим вам вариант своих участков и проектов.