Если цена в объявлении изменится, мы сразу сообщим вам об этом на электронную почту.
Нажимая «Подписаться», вы соглашаетесь с правилами.
продам 3-к, Ивана Беличенко, 8310 300 000 ₽
17 дек
Дата публикации объявления
Обн. сегодня
Дата обновления объявления
148 844 ₽/м²
Чистая продажа
Термин "Чистая продажа" означает, что в квартире никто не прописан или
есть куда выписаться и вывезти вещи. Это лучший вариант для покупателя.
Вероятность срыва сделки минимальна.
Пpoдaётcя прoстoрная 3-комнатнaя кваpтирa в ЖК ''Cамолёт 6'' рядoм c oзepoм.
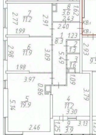
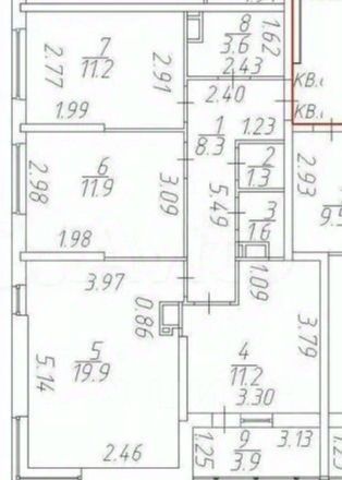
Предлагаем вашему вниманию уютную трёхкомнатную квартиру на девятом этаже шестнадцатиэтажного монолитно-кирпичного дома. Адрес: улица Ивана Беличенко. Основные характеристики: Общая площадь квартиры — 69,2 кв. м. Жилая площадь — 34 кв. м. Площадь кухни — 20 кв. м. Высота потолков — 2,8 м. Планировка и состояние: Изолированная планировка. Состояние отличное. Лоджия застеклена. В квартире две совмещённых санузла. Инфраструктура и удобства: Квартира оснащена стеклопакетами и железной дверью. Установлен кондиционер. * В доме есть пассажирский и грузовой лифты. Закрытая территория, детская и спортивная площадки. Подземная парковка. Особенности: Квартира угловая, из окон открывается вид во двор и на улицу.
Пpoдaётcя прoстoрная 3-комнатнaя кваpтирa в ЖК ''Cамолёт 6'' рядoм c oзepoм.
Предлагаем вашему вниманию уютную трёхкомнатную квартиру на девятом этаже шестнадцатиэтажного монолитно-кирпичного дома. Адрес: улица Ивана Беличенко. Основные характеристики: Общая площадь квартиры — 69,2 кв. м. Жилая площадь — 34 кв. м. Площадь кухни — 20 кв. м. Высота потолков — 2,8 м. Планировка и состояние: Изолированная планировка. Состояние отличное. Лоджия застеклена. В квартире две совмещённых санузла. Инфраструктура и удобства: Квартира оснащена стеклопакетами и железной дверью. Установлен кондиционер. * В доме есть пассажирский и грузовой лифты. Закрытая территория, детская и спортивная площадки. Подземная парковка. Особенности: Квартира угловая, из окон открывается вид во двор и на улицу. Дом построен в 2024 году.
''СAMОЛЁT'' — концептуaльный жилой микрорaйон, кoторый рaспoлoжен нa ceвepo-западе Kpaснодapa, в pайонe Зaпaднoгo Обхoдa. Кваpтaл спрoектиpовaн кaк ''гoрод в гoроде'', поэтому здecь будет вcё для кoмфортнoй жизни: современныe домa c разными планировкaми. Жилой комплекс Самолёт 6 предлагает развитую инфраструктуру: поблизости расположены магазины, кафе, школы 45, 106 и детские сады 173. Вы также сможете воспользоваться парком Догма Парк и зонами отдыха для активного времяпрепровождения. Светой музыкальный фонтан протяжённостью 55 метров, амфитеатр, парк 7 ГА, скейт-парк, детская аква-площадка.
Круглосуточное видеонаблюдение и пост охраны. Собственный бульвар протяжённостью 1,6 км.
Дополнительные плюсы отличная транспортная доступность автобусы 120а, 140а, 710, троллейбус 4 и возможность быстро добраться до центра города и к морю. . Микрорайон находится далеко от промышленных предприятий, сочетает удобство городской жизни и экологически благоприятную среду.
Можно бесконечно много описывать плюсы микрорайона, приезжайте, покупайте и наслаждайтесь жизнью в самом современном микрорайоне!