Если цена в объявлении изменится, мы сразу сообщим вам об этом на электронную почту.
Нажимая «Подписаться», вы соглашаетесь с правилами.
продам коттедж, Сукко9 190 000 ₽
16 дек
Дата публикации объявления
Обн. 26 мар
Дата обновления объявления
3
Количество просмотров (+ просмотры за сегодня)
51 056 ₽/м²
Чистая продажа
Термин "Чистая продажа" означает, что в квартире никто не прописан или
есть куда выписаться и вывезти вещи. Это лучший вариант для покупателя.
Вероятность срыва сделки минимальна.
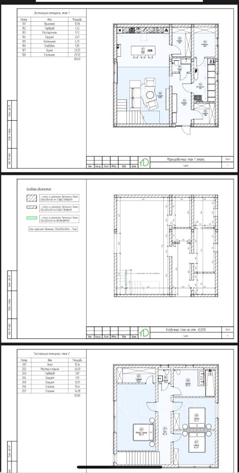
Фундамент лента в землю 2 метра 15 диаметра арматура 300 бетон Сверху плита 20 см арматура в два ряда 12 диаметра Блок керамзит 20 перекрытия 12 Монолитные колонны в круг соединяют дом в единый монолитный каркас,все перекрытия тоже по 20 см окна профиль элипс раму целиком в массе цвета антрацит,мультипакет везде Плоская мягкая кровля Дом строился по проекту ,скину в лс Также скину полное видео с описанием Фасад пенопласт 10см сверху сетка клей в два слоя (осталось только выбрать цвет и покрасить) Скважина 100 метров Электричество 15 кВт Дома полностью развел всю электрику ,заложил коммуникации под сантехнику. Дом полностью отштукатурен и частично зашпаклеван под покраску стен В доме все лично продумывал до самых мелочей,более подробно расскажу по телефону или при встрече Пишите либо звоните в любое время до 23:00 я на связи