Термин "Чистая продажа" означает, что в квартире никто не прописан или
есть куда выписаться и вывезти вещи. Это лучший вариант для покупателя.
Вероятность срыва сделки минимальна.
Этажей1
Площадь участка4 сотки
Общая площадь80 м2
Материал домабетонные блоки
ЭлектричествоЕсть
Газоснабжениенет
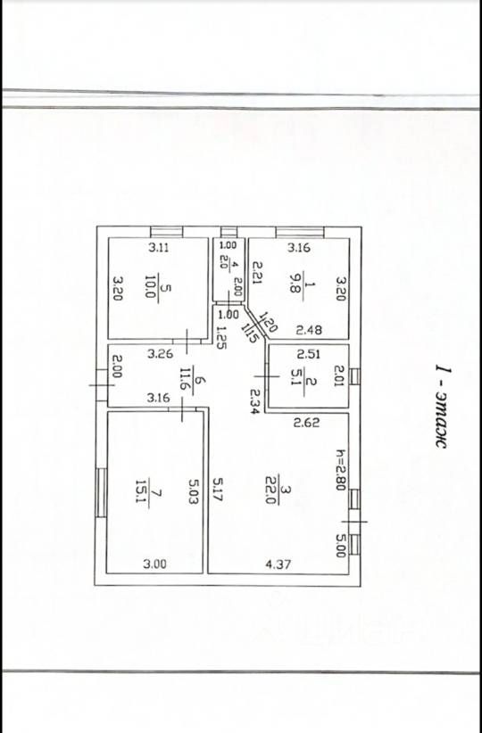
Продам Дом общей площадью 80м2 на земельном участке 4 сотки . Планировка:Три спальные комнаты, просторная кухня-гостиная с выходом на задний двор, ванная комната ,санузел ,холл. Коммуникации:Электричество 15 кВт,центральная вода, канализация . Дом продается в предчистовой отделке:разводка электричества, водоснабжения и водоотведения, теплые полы в зонах общего пользования, стены оштукатурены и ошпаклеваны, выполнена стяжка пола,плитка в зонах теплого пола и в санузле,в комнатах установлены радиаторы ,установлен двухконтурный котел отопления. По периметру участок огорожен забором , по фасаду откатные ворота, калитка. Забетонирован отмостка вокруг дома и площадка для автомобилей.
Продам Дом общей площадью 80м2 на земельном участке 4 сотки . Планировка:Три спальные комнаты, просторная кухня-гостиная с выходом на задний двор, ванная комната ,санузел ,холл. Коммуникации:Электричество 15 кВт,центральная вода, канализация . Дом продается в предчистовой отделке:разводка электричества, водоснабжения и водоотведения, теплые полы в зонах общего пользования, стены оштукатурены и ошпаклеваны, выполнена стяжка пола,плитка в зонах теплого пола и в санузле,в комнатах установлены радиаторы ,установлен двухконтурный котел отопления. По периметру участок огорожен забором , по фасаду откатные ворота, калитка. Забетонирован отмостка вокруг дома и площадка для автомобилей. Дом расположен на большом участке 4 сотки ,с возможностью установить мангальную зону, поставить бассейн. В станице есть вся необходимая инфраструктура для комфортной жизни: две школы (СОШ 75, СОШ 76), детский сад 206 а также частные детские сады, больница, сетевые магазины (магнит, пятерочка), стоматологии, салоны красоты, МФЦ, отделения банков. В шаговой доступности магазины, остановка общественного транспорта, в школу возит бесплатный школьный автобус. Подходит Любой вид Льготной ипотеки.