Если цена в объявлении изменится, мы сразу сообщим вам об этом на электронную почту.
Нажимая «Подписаться», вы соглашаетесь с правилами.
продам дом, переулок Максима Горького7 115 000 ₽
15 ноя
Дата публикации объявления
Обн. сегодня
Дата обновления объявления
85 108 ₽/м²
Чистая продажа
Термин "Чистая продажа" означает, что в квартире никто не прописан или
есть куда выписаться и вывезти вещи. Это лучший вариант для покупателя.
Вероятность срыва сделки минимальна.
Этажей1
Площадь участка5,14 соток
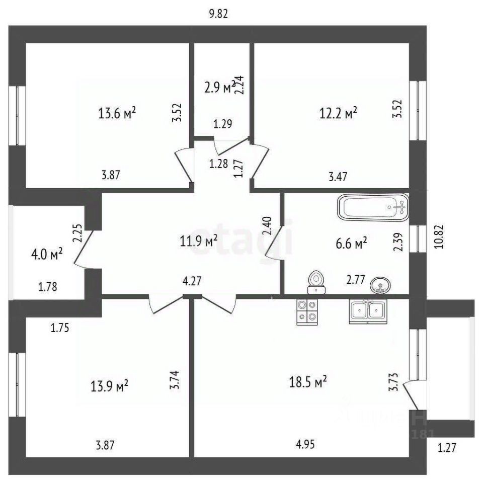
Общая площадь83,6 м2
ЭлектричествоЕсть
Газоснабжениецентральное
Новый кирпичный дом площадью 83,6 м² на участке 514 м² будет сдан в 2025 году. Рациональная планировка включает три изолированные комнаты, обеспечивая четкое разделение на приватную, гостевую зоны и пространство для детей. Все инженерные коммуникации централизованы: подведены электричество, газ и центральное водоснабжение, что позволяет заселиться сразу после завершения строительства. Участок с категорией ИЖС гарантирует простоту юридического оформления и возможность постоянной регистрации. Расположение в районе с развитой инфраструктурой обеспечивает шаговую доступность к магазинам, аптеке, детскому саду и школе, что оптимизирует повседневные маршруты.
Новый кирпичный дом площадью 83,6 м² на участке 514 м² будет сдан в 2025 году. Рациональная планировка включает три изолированные комнаты, обеспечивая четкое разделение на приватную, гостевую зоны и пространство для детей. Все инженерные коммуникации централизованы: подведены электричество, газ и центральное водоснабжение, что позволяет заселиться сразу после завершения строительства. Участок с категорией ИЖС гарантирует простоту юридического оформления и возможность постоянной регистрации. Расположение в районе с развитой инфраструктурой обеспечивает шаговую доступность к магазинам, аптеке, детскому саду и школе, что оптимизирует повседневные маршруты. Транспортная доступность высокая за счет асфальтированной дороги, остановок общественного транспорта и близости железнодорожной станции. Объект представляет собой полностью готовое решение для комфортного круглогодичного проживания без необходимости дополнительных вложений в ремонт или благоустройство территории.