Если цена в объявлении изменится, мы сразу сообщим вам об этом на электронную почту.
Нажимая «Подписаться», вы соглашаетесь с правилами.
продам дом, Бульварная34 000 000 ₽
15 ноя
Дата публикации объявления
Обн. 14 мая
Дата обновления объявления
1
Количество просмотров (+ просмотры за сегодня)
128 642 ₽/м²
Чистая продажа
Термин "Чистая продажа" означает, что в квартире никто не прописан или
есть куда выписаться и вывезти вещи. Это лучший вариант для покупателя.
Вероятность срыва сделки минимальна.
Этажей1
Площадь участка8,04 соток
Общая площадь264,3 м2
Материал домакирпич
ЭлектричествоЕсть
Газоснабжениецентральное
Представляем вашему вниманию великолепный одноэтажный дом площадью 264,3 м² на ухоженном земельном участке 8 соток. Это идеальное сочетание комфорта городской жизни и уединения в собственном оазисе.
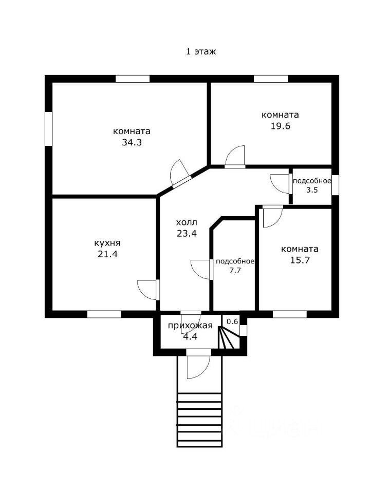
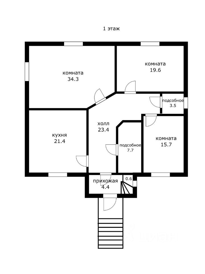
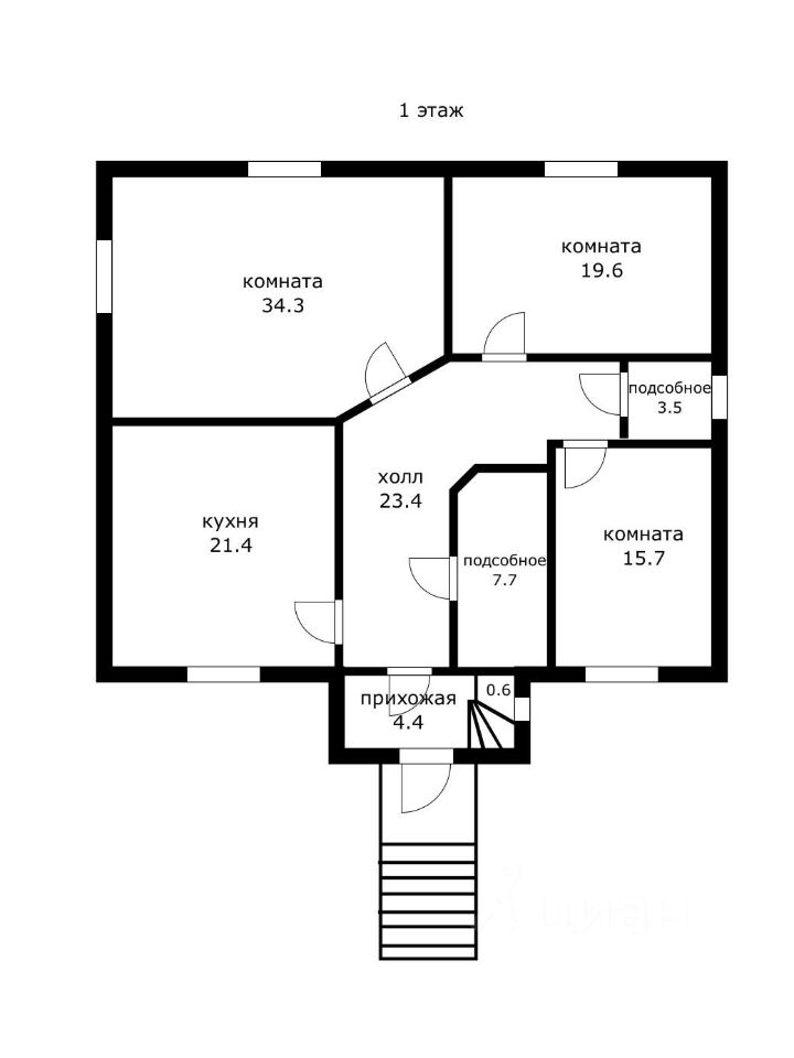
Планировка дома.
Представляем вашему вниманию великолепный одноэтажный дом площадью 264,3 м² на ухоженном земельном участке 8 соток. Это идеальное сочетание комфорта городской жизни и уединения в собственном оазисе.
Планировка дома. Первый этаж:
Просторная кухня 21,4 м² — место, где рождаются кулинарные шедевры Изысканная гостиная 34,3 м² — центр семейных торжеств и встреч с друзьями Две уютные спальни 19,6 м² и 15,7 м² — пространство для спокойного отдыха Гардеробная 3,5 м² Ванная комната 7,7 м² Представительский холл 23,4 м² — первое впечатление о вашем доме
Цокольный этаж:
Каминная зона 44,9 м² — идеальное место для семейных вечеров Две дополнительные комнаты по 11 м² — возможности для творчества и отдыха Просторный гараж 61 м² — надёжное место для вашего автомобиля
Благоустроенный участок. Территория двора представляет собой настоящий оазис спокойствия:
Взрослое озеленение с величественными елями и экзотическими пальмами Цветущие розы создают неповторимую атмосферу уюта Плодовые деревья дарят натуральные фрукты Зона барбекю для незабываемых летних вечеров Территория выложена плиткой — практичность Зелёная зона отдыха за домом
Дом расположен в тихом спальном районе, в непосредственной близости от ключевых объектов инфраструктуры:
Город Спорта — для любителей активного образа жизни Баскет Холл — для ценителей спорта ТЦ Красная площадь — для комфортного шопинга Звоните прямо сейчас, организую показ в удобное для вас время и отвечу на все интересующие вопросы.