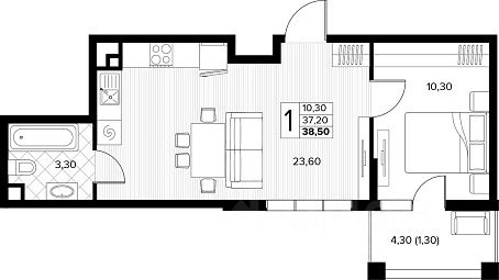
Продаётся 1-комнатная квартира в строящемся доме (поз.7), срок сдачи: IV-кв. 2027, общей площадью 38.5 кв.м., на 6 этаже. Новый жилой комплекс ''Кипарис'' от застройщика ''AVA'' расположен по адресу: Россия, Краснодарский край, муниципальный округ Анапа, село Сукко, Мирная улица