Если цена в объявлении изменится, мы сразу сообщим вам об этом на электронную почту.
Нажимая «Подписаться», вы соглашаетесь с правилами.
продам 2-к, Ярославская, 115 корп. 79 191 000 ₽
29 окт
Дата публикации объявления
Обн. сегодня
Дата обновления объявления
2
Количество просмотров (+ просмотры за сегодня)
Турбо x8
140 000 ₽/м²
Чистая продажа
Термин "Чистая продажа" означает, что в квартире никто не прописан или
есть куда выписаться и вывезти вещи. Это лучший вариант для покупателя.
Вероятность срыва сделки минимальна.
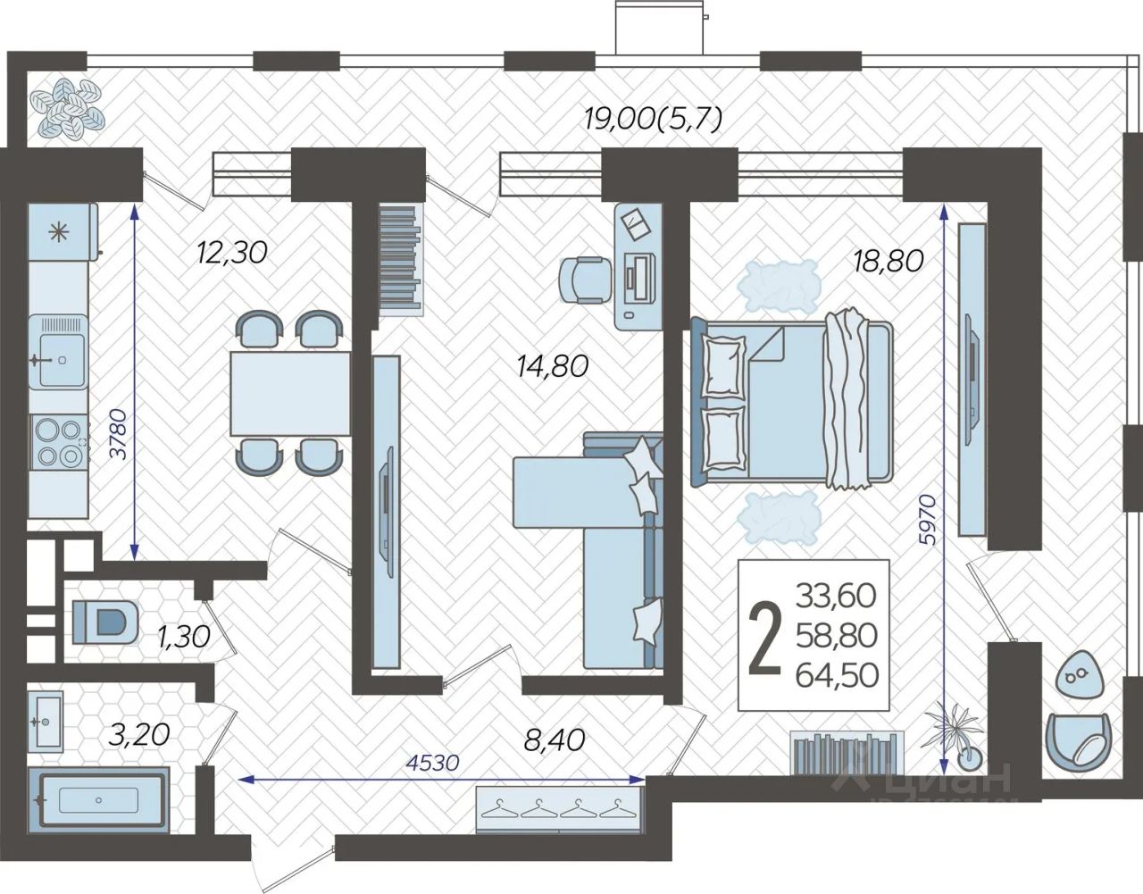
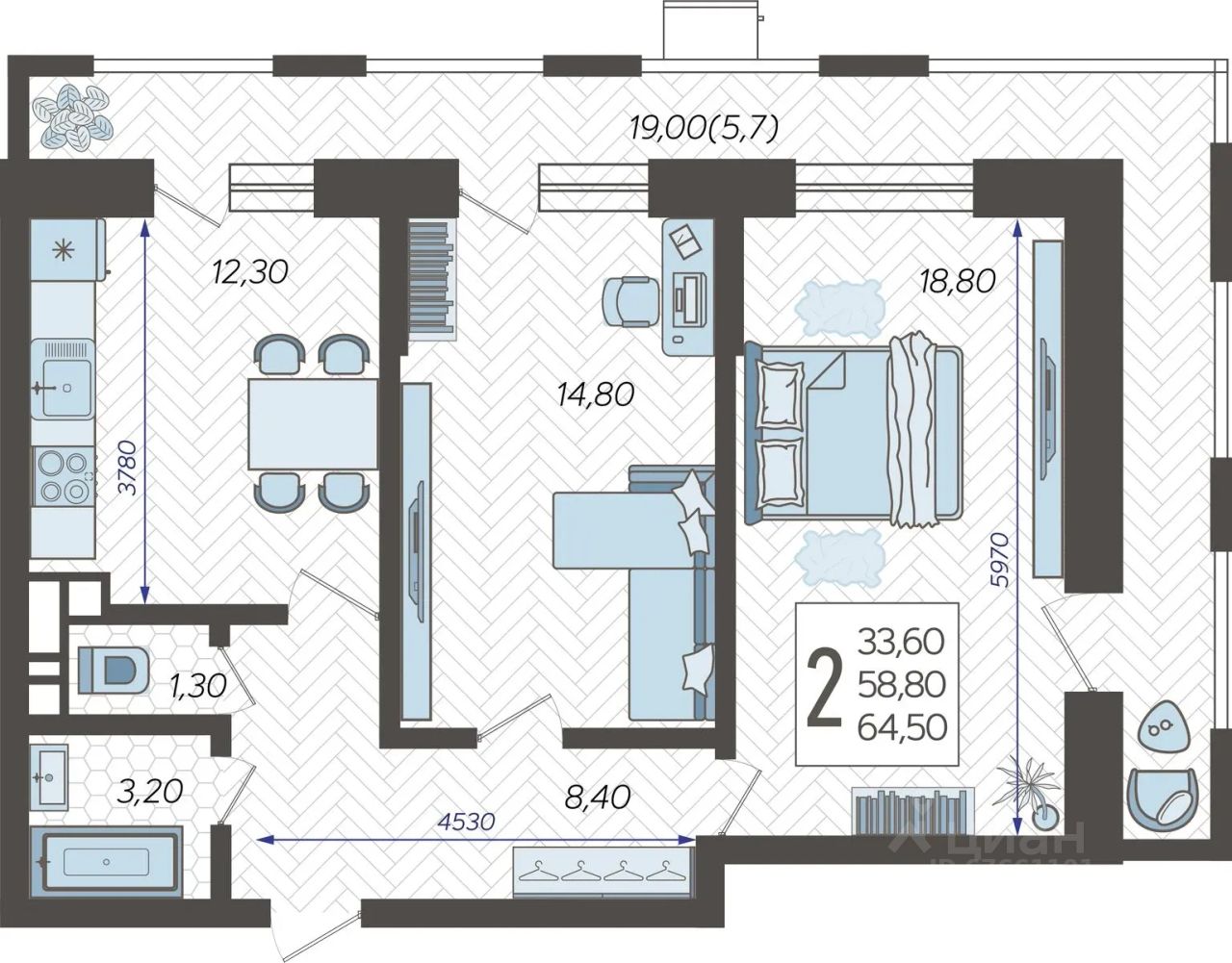
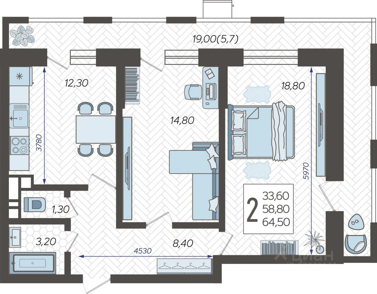
Продаётся 2-комнатная квартира в сданном доме (Литер 6), срок сдачи: III-кв. 2024, общей площадью 65.65 кв.м., на 4 этаже. Новый жилой комплекс ''Небо'' от застройщика ''АСК'' расположен по адресу город Краснодар, Ярославская улица.