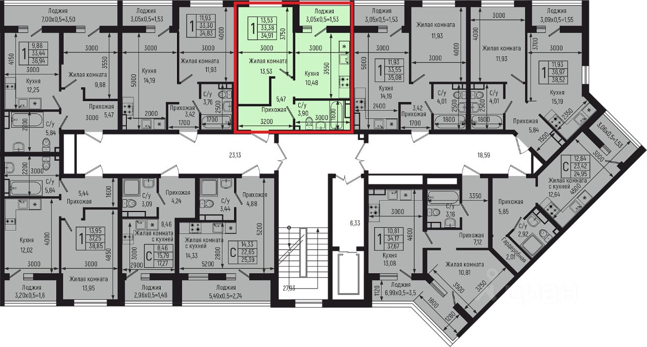
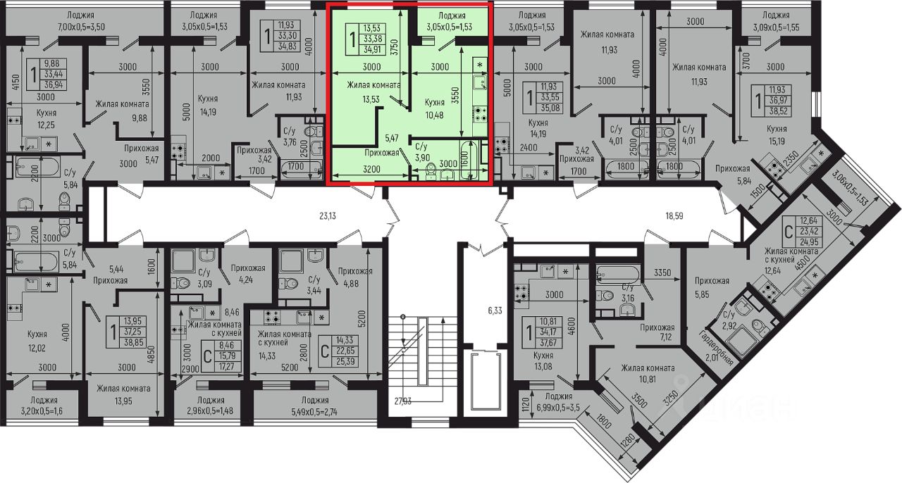
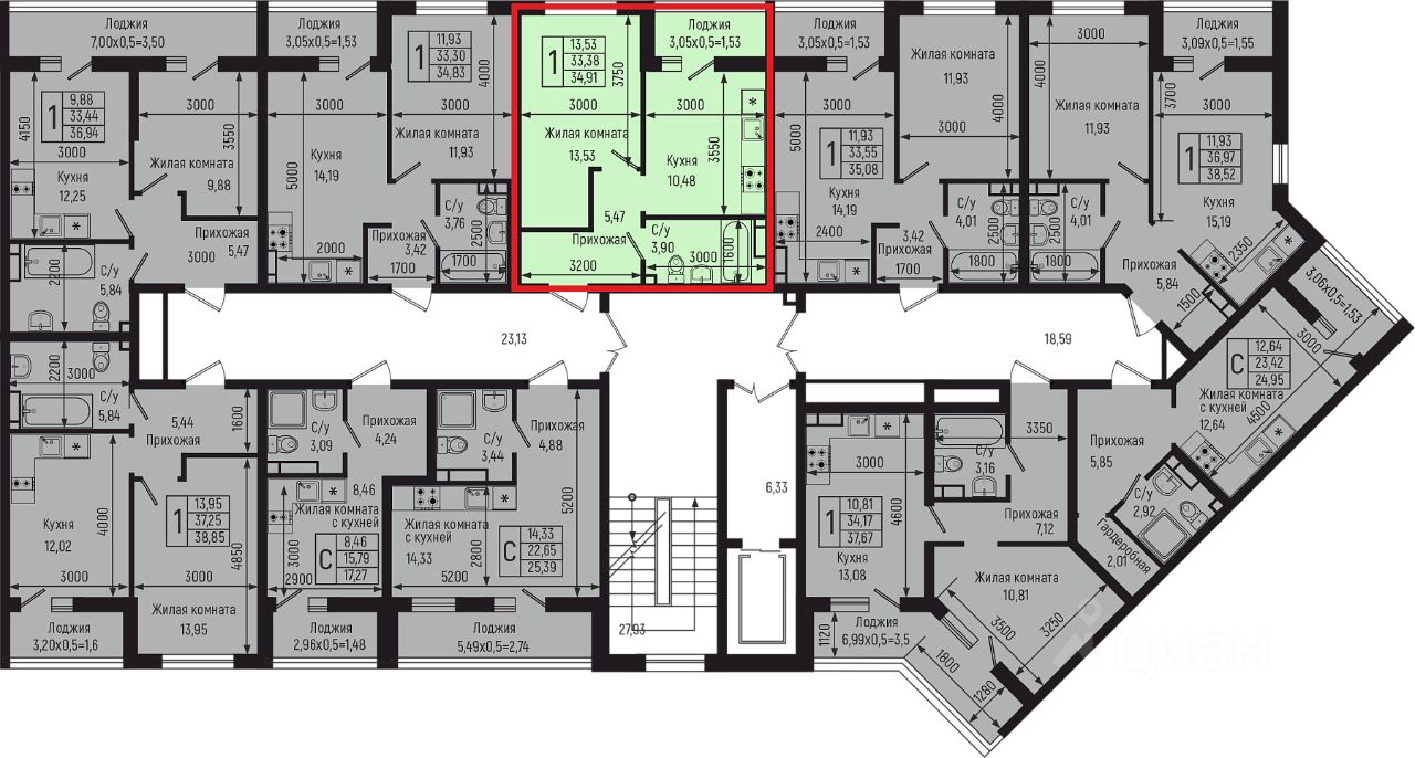
Продаётся 1-комнатная квартира в строящемся доме (Литер 3), срок сдачи: III-кв. 2027, общей площадью 34.91 кв.м., на 3 этаже. Новый жилой комплекс ''Botanica Hills'' от застройщика ''Название застройщика'' расположен по адресу Краснодарский край, Туапсинский район, село Небуг, Спортивная улица.