сдам универсальное помещение, им 40-летия Победы, 33г1 300 000 ₽ в месяц
1 окт
Дата публикации объявления
Обн. вчера
Дата обновления объявления
3
Количество просмотров (+ просмотры за сегодня)
1813 ₽/м² в месяц
Параметры
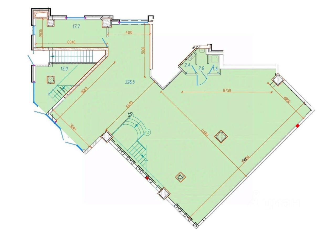
Общая площадь717 м2
Этаж1
Назначение помещения
медицинский центр, стоматология
Сдается коммерческое помещение в мультиформатном доме премиум класса Девелопмент- Плаза.
об объекте: Помещение расположено на первой линии. Вход с фасадной части, со стороны ул. Московская - 40 летия Победы. Хороший пешеходный и автомобильный трафик.
Помещение в 2х уровнях: Первый этаж площадь: 271,4 м2, высота потолка 4,75 м. Второй этаж площадь: 445,3 м2, высота потолка 3,9 м. Санузел и подсобные помещения на первом и втором этажах.
Сдается коммерческое помещение в мультиформатном доме премиум класса Девелопмент- Плаза.
об объекте: Помещение расположено на первой линии. Вход с фасадной части, со стороны ул. Московская - 40 летия Победы. Хороший пешеходный и автомобильный трафик.
Помещение в 2х уровнях: Первый этаж площадь: 271,4 м2, высота потолка 4,75 м. Второй этаж площадь: 445,3 м2, высота потолка 3,9 м. Санузел и подсобные помещения на первом и втором этажах.
Коммерческое помещение в ЖК Девелопмент Плаза спроектировано так, чтобы вам было комфортно открыть бизнес:
• свободная планировка • высокие потолки • электричество 80 КВт • витражное остекление • индивидуальная система кондиционирования и вентиляции • подключены центральные коммуникации • место для вывесок на фасаде • удобная входная группа • помещение уже имеет статус нежилого
Идеально подходит под отделения банка, медицинский центр и т.д.
для вас: Звоните!! Показ в любое удобное для вас время!!! Без оплаты дополнительных комиссий и процентов!