Если цена в объявлении изменится, мы сразу сообщим вам об этом на электронную почту.
Нажимая «Подписаться», вы соглашаетесь с правилами.
продам 2-к, Дагомыс пгт, 28а корп. 316 700 000 ₽
26 сен
Дата публикации объявления
Обн. сегодня
Дата обновления объявления
2
Количество просмотров (+ просмотры за сегодня)
Топ
219 737 ₽/м²
Чистая продажа
Термин "Чистая продажа" означает, что в квартире никто не прописан или
есть куда выписаться и вывезти вещи. Это лучший вариант для покупателя.
Вероятность срыва сделки минимальна.
Квартира
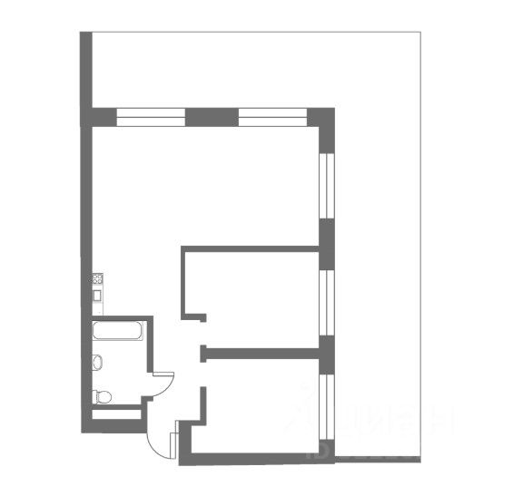
Общая площадь76 м2
Жилая площадь65 м2
Кухня8 м2
Количество балконов1
Дом
Этаж7 из 20
Материал домамонолит
Просторная 2-комнатная квартира площадью 76 м² в жилом комплексе Аллея Парк, находящаяся на 7 этаже 20-этажного дома. Идеальный вариант для комфортной жизни или отдыха в Сочи. Квартира выполнена в современном дизайне с новой отделкой и полной мебельной комплектацией. Планировка формата евро-3 позволяет эффективно использовать пространство: отдельно выделенная зона гостиной, кухня и две спальные зоны.
Просторная 2-комнатная квартира площадью 76 м² в жилом комплексе Аллея Парк, находящаяся на 7 этаже 20-этажного дома. Идеальный вариант для комфортной жизни или отдыха в Сочи. Квартира выполнена в современном дизайне с новой отделкой и полной мебельной комплектацией. Планировка формата евро-3 позволяет эффективно использовать пространство: отдельно выделенная зона гостиной, кухня и две спальные зоны.
Преимущества квартиры: Просторная спальня с двуспальной кроватью и ортопедическим матрасом Вторая изолированная комната с диваном-кроватью Полностью оборудованная кухня: плита, духовой шкаф, микроволновка, холодильник, посудомоечная машина, чайник, кухонные принадлежности Кондиционеры в каждой комнате Большой балкон с зоной отдыха Современный лифт Панорамные окна с видом на город Высокий этаж — тишина и приватность
Инфраструктура комплекса: Магазины и супермаркеты в пешей доступности Рядом школы, детские сады и развивающие центры Спортивные площадки и детские зоны на территории Наземная парковка на территории ЖК Закрытая территория с охраной и видеонаблюдением
Расположение: Квартира находится всего в 1,2 км от моря — легко добраться пешком за 15 минут. Район Дагомыс с развитой транспортной доступностью. Удобный выезд на Батумское шоссе, остановки общественного транспорта рядом с домом. Прогулочная зона, пляжи, кафе и набережная — всё рядом для отдыха и прогулок.
Заинтересовало предложение? Свяжитесь с нами, чтобы получить подробности и договориться о просмотре