Реальное объявление!
Без %, комиссий и переплат!
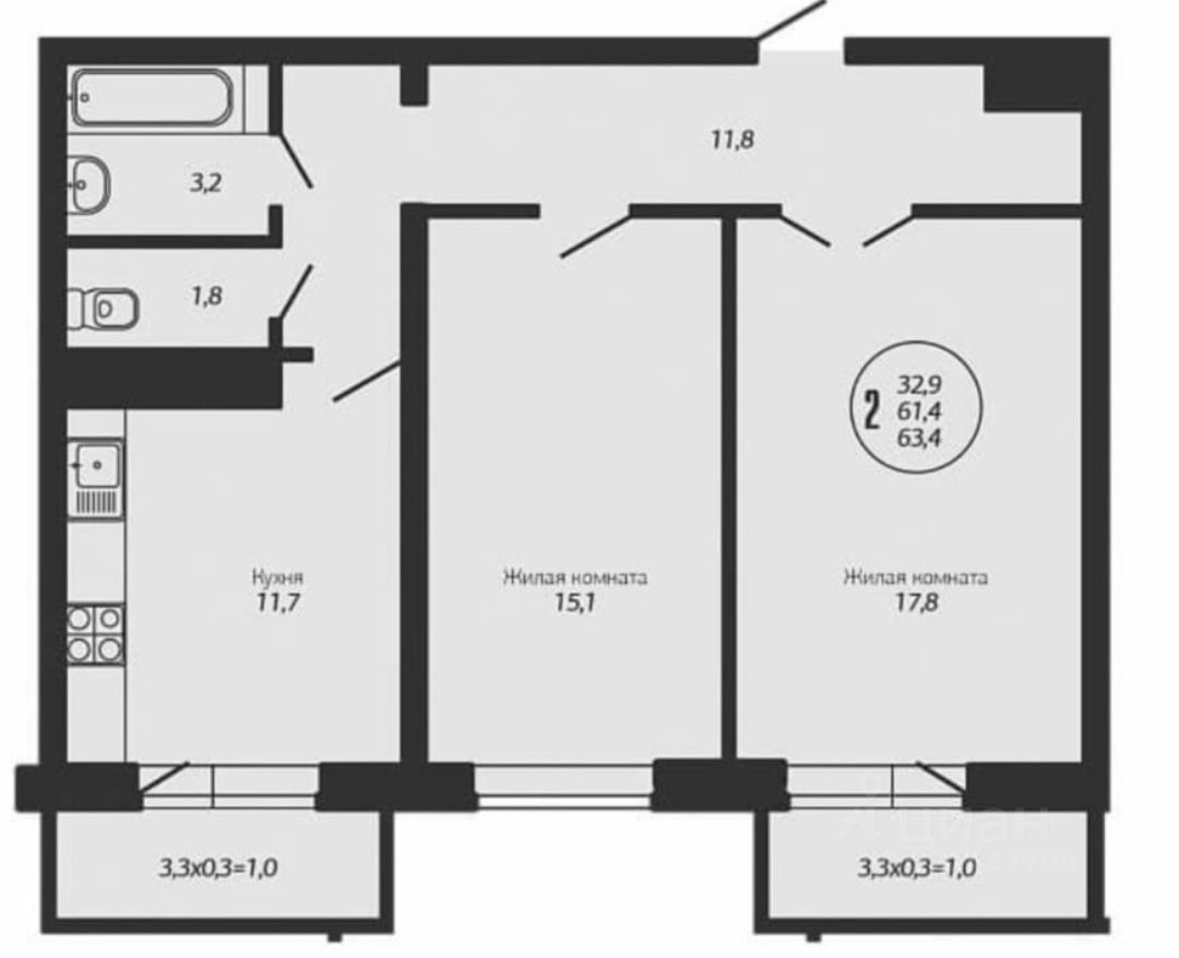
Продаю квартиру в ЖК Мелодия.
Современная, просторная планировка. Изолированные комнаты, раздельный санузел, функциональная прихожая с гардеробной, просторная кухня 12 м2, 2 балкона.
Предчистовая отделка.
Благоустроенная придомовая территория с детскими и спортивными площадками, наземным паркингом, различными магазинами и салонами. В пешей доступности 5 школ и гимназий, 10 детских садов, различный магазины, салоны и другие прелести развитой, уже сложившейся социальной и транспортной инфраструктуры.



