Если цена в объявлении изменится, мы сразу сообщим вам об этом на электронную почту.
Нажимая «Подписаться», вы соглашаетесь с правилами.
продам 3-к, Черниговская, 120 000 000 ₽
30 авг
Дата публикации объявления
Обн. 1 апр
Дата обновления объявления
1
Количество просмотров (+ просмотры за сегодня)
78 125 ₽/м²
Чистая продажа
Термин "Чистая продажа" означает, что в квартире никто не прописан или
есть куда выписаться и вывезти вещи. Это лучший вариант для покупателя.
Вероятность срыва сделки минимальна.
Застройщик - СтройИнвест-Кубань, ООО. Проектная декларация опубликована на сайте www.sik93.ru
Продам пентхаус 256 метров2, расположенный по улице Черниговской, 1.
Район расположен вблизи стадиона ''Краснодар'', в пешей доступности. Рядом с домой есть озеро со своей набережной и зоной для рыбалки и отдыха. Двор полностью закрыт от посторонних людей, есть круглосуточная охрана. Парковка во дворе и подземная. В подъезде 3 лифта, на ваш этаж можно подняться только по специальному ключу, то есть посторонних на этаже нет.
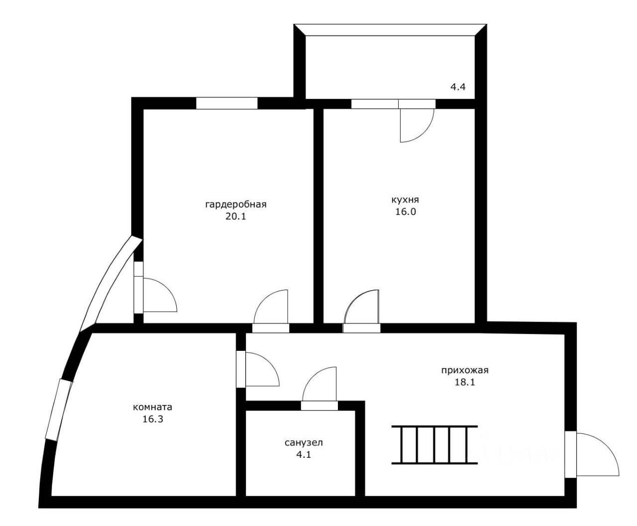
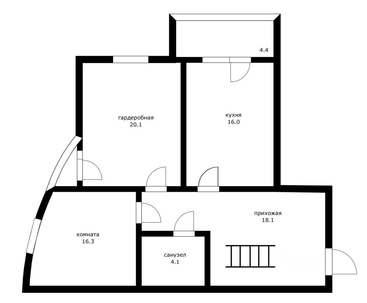
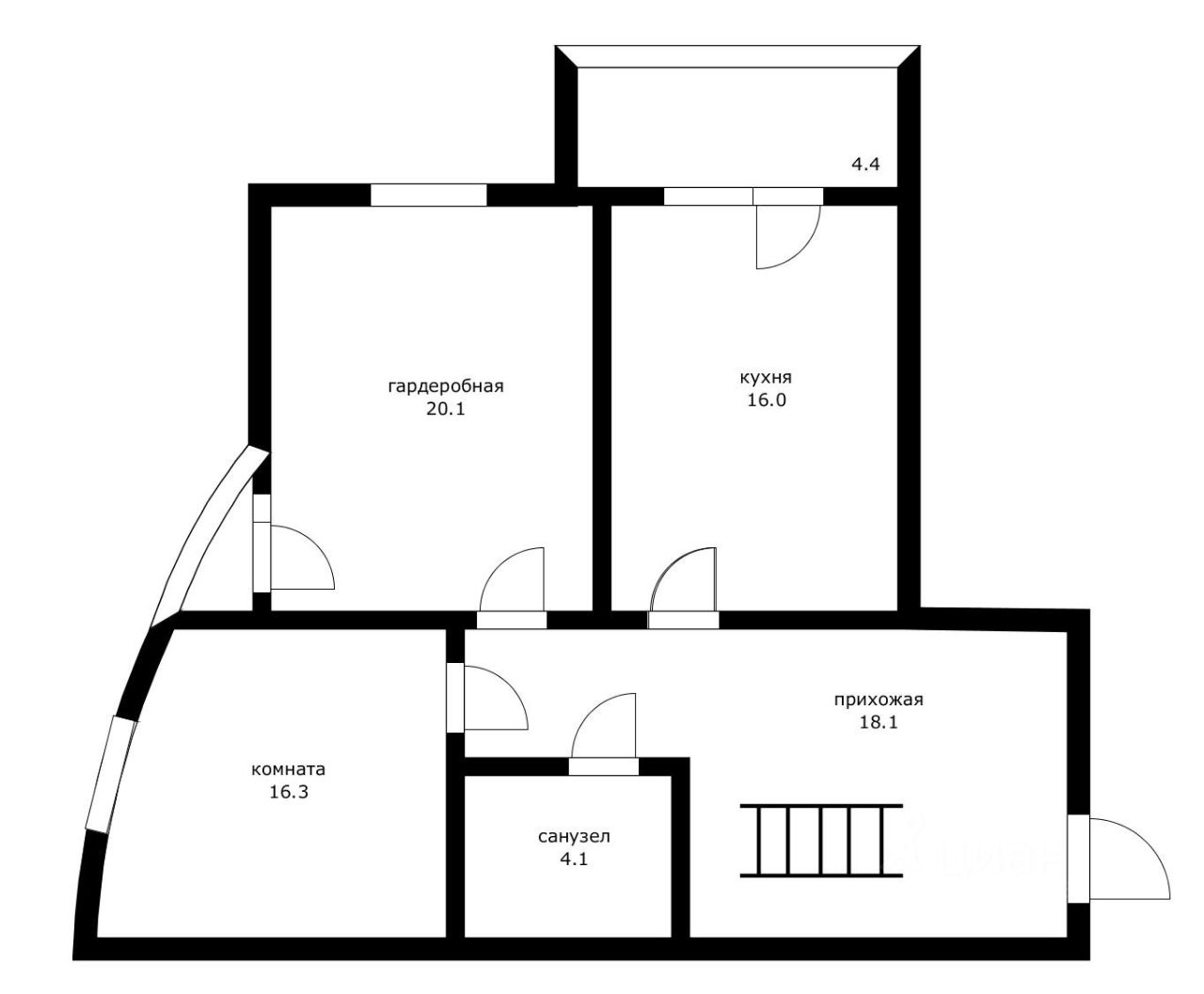
В квартире 2 уровня, первый- две просторные комнаты, кухня-гостиная, раздельный санузел, на втором-свободная планировка с террасой и огромными окнами, высота потолков 4 метра. С квартиры открываются шикарные виды на разные районы города.
Продам пентхаус 256 метров2, расположенный по улице Черниговской, 1.
Район расположен вблизи стадиона ''Краснодар'', в пешей доступности. Рядом с домой есть озеро со своей набережной и зоной для рыбалки и отдыха. Двор полностью закрыт от посторонних людей, есть круглосуточная охрана. Парковка во дворе и подземная. В подъезде 3 лифта, на ваш этаж можно подняться только по специальному ключу, то есть посторонних на этаже нет.
В квартире 2 уровня, первый- две просторные комнаты, кухня-гостиная, раздельный санузел, на втором-свободная планировка с террасой и огромными окнами, высота потолков 4 метра. С квартиры открываются шикарные виды на разные районы города. Планировка и высота потолков дадут возможность сделать дизайнерский ремонт и воплотить в жизнь все дизайнерские фантазии новых владельцев.
Квартира готова к продаже, никто не прописан. Ждем Вас на просмотр шикарных видов на город!