Если цена в объявлении изменится, мы сразу сообщим вам об этом на электронную почту.
Нажимая «Подписаться», вы соглашаетесь с правилами.
продам дом, им Крупской65 000 000 ₽
12 авг 2025
Дата публикации объявления
Обн. 14 мая
Дата обновления объявления
7
Количество просмотров (+ просмотры за сегодня)
130 000 ₽/м²
Чистая продажа
Термин "Чистая продажа" означает, что в квартире никто не прописан или
есть куда выписаться и вывезти вещи. Это лучший вариант для покупателя.
Вероятность срыва сделки минимальна.
Этажей2
Площадь участка8 соток
Общая площадь500 м2
Материал домакирпич
ЭлектричествоЕсть
Газоснабжениецентральное
Уникальный дом-дворец в черте города! Общая площадь дома с террасой составляет 500 кв.м.
В 2018 году сделан ремонт и все убранство дома оформлено в соответствии со всеми правилами стиля ампир: бронзовые люстры с хрусталем, золотые своды колон и арок, позолоченные кованные элементы лестничных маршей , эксклюзивная стилизованная мебель.
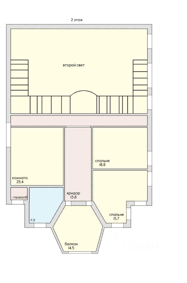
В нашем доме 4 изолированные спальни, кухня 33 кв.м., огромная гостиная площадью почти 90 кв.м. и потолком 10 м. Высота потолков в комнатах 4 м. Дом обустроен двумя ванными комнатами и тремя санузлами. По всему первому этажу смонтированы теплые полы.
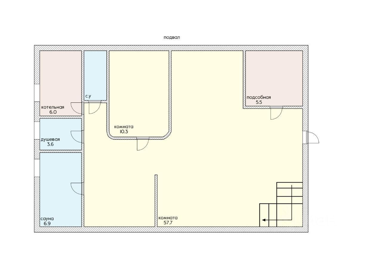
В цокольном этаже с полноценной высотой потолка размещаются сауна, бассейн, тренажерный зал, котельная и подсобные помещения.
Уникальный дом-дворец в черте города! Общая площадь дома с террасой составляет 500 кв.м.
В 2018 году сделан ремонт и все убранство дома оформлено в соответствии со всеми правилами стиля ампир: бронзовые люстры с хрусталем, золотые своды колон и арок, позолоченные кованные элементы лестничных маршей , эксклюзивная стилизованная мебель.
В нашем доме 4 изолированные спальни, кухня 33 кв.м., огромная гостиная площадью почти 90 кв.м. и потолком 10 м. Высота потолков в комнатах 4 м. Дом обустроен двумя ванными комнатами и тремя санузлами. По всему первому этажу смонтированы теплые полы.
В цокольном этаже с полноценной высотой потолка размещаются сауна, бассейн, тренажерный зал, котельная и подсобные помещения. Безопасность обеспечивается системой видеонаблюдения по всему периметру.
В районе сформирована вся необходимая инфраструктура: детские сады, школа, медицинский пункт, множество торговых центров, парки и скверы, кафе и рестораны, остановки общественного транспорта.
Отличная транспортная развязка. Можно без труда добраться в любой район города Фестивальный, Юбилейный, Центр, 40 Лет Победы, Ленту, Авиагородок, Витаминкомбинат, Славянский, Комсомольский, ЭНКА, Гидрострой и Пашковку.
Документы полностью готовы к сделке! Приезжайте, чтобы увидеть все своими глазами!